Nieuw in verkoop:Hangarweg 10, 2241 TZ Wassenaar - Foto
Nieuw in verkoop
+28

Hangarweg 10 2241 TZ Wassenaar € 625.000,- k.k.

  • Bedrijfshal
  • Bouwjaar 2002
  • 236 m² perceeloppervlakte
  • 240 m² vloeroppervlakte
Functionele bedrijfsruimte met kantoor op bedrijventerrein Maaldrift te Wassenaar.

Beschrijving

Algemeen
Bent u op zoek naar de perfecte locatie voor uw onderneming? Ontdek dit moderne Bedrijfspand van circa 240 m² op het uitstekend bereikbare bedrijfsterrein Maaldrift in Wassenaar. Strategisch gelegen nabij belangrijke verkeersaders en met uitstekende verbindingen naar Den Haag en Leiden biedt dit pand uw bedrijf de ideale combinatie van zichtbaarheid en toegankelijkheid.

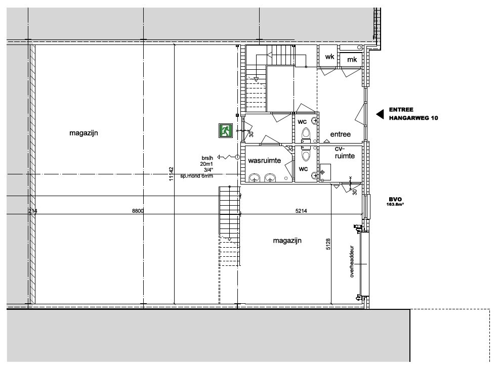
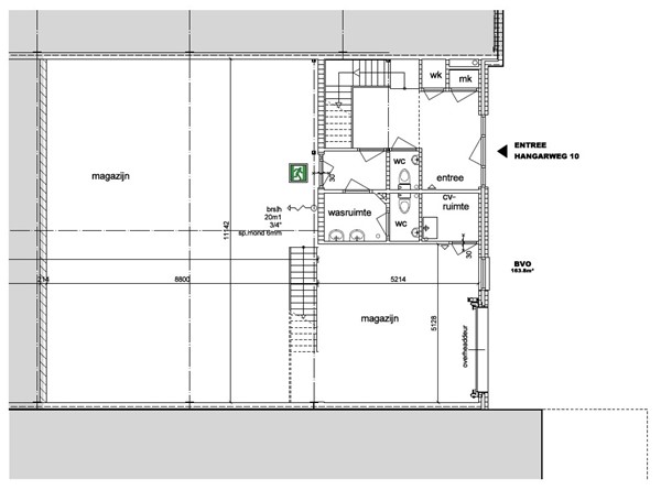
Het bedrijfspand beschikt over een efficiënte indeling en heeft de beschikking over een ruime bedrijfshal met mooie vrije hoogte, een solide stalen entresol voor extra opslag, voldoende toiletruimten en functionele kantoorruimte.

Adres
Hangarweg 10, 2241 TZ Wassenaar.

Locatie
De bedrijfsruimte is gelegen op bedrijventerrein Maaldrift, aan de noordzijde van Wassenaar en op korte afstand van Leiden. Bedrijventerrein Maaldrift ligt aan de parallelweg van de rijksweg A44 (Rijksstraatweg). Het bedrijventerrein heeft een actieve ondernemersvereniging en wordt goed onderhouden. Daarnaast is bedrijventerrein Maaldrift een Bedrijven Investeringszone (BIZ).

Op het bedrijventerrein van circa 6,2 hectaren is een mix aan regionaal en landelijk actieve bedrijven te vinden, zoals onder andere Van der Kroft Party Rental Service, de Wassenaarse Bouwmaatschappij, Tacx, Rooijakkers Olie en de Lagerberg Verhuisgroep.

Bereikbaarheid
Het bedrijventerrein is strategisch gelegen nabij diverse rijkswegen. Door de ligging naast de rijksweg A44 is zowel Leiden, als Den Haag goed bereikbaar. Ook is de A4 snel te bereiken via de nieuwe N434 (de verbindingsweg tussen de A44 en de A4).

Per openbaar vervoer is het gebied bereikbaar met bus 43 (Den Haag-Leiden), die een halte heeft bij de entree van het bedrijfsterrein.

Vloeroppervlak
Totaal circa 240 m² vloeroppervlak, als volgt onderverdeeld.
- Bedrijfsruimte begane grond circa 124 m²
- Degelijke entresolvloer in de bedrijfsruimte circa 30 m²
- Entree en toiletgroepen circa 30 m²
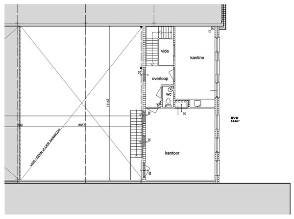
- Kantoorruimte op de 1 verdieping circa 56 m²
- Totaal: circa 240 m²

Genoemde metrages zijn van tekening en op locatie ingemeten en zijn een globale weergave. Dit betreft geen NEN2580 meting en hier kunnen geen rechten aan worden ontleend.

Kadastrale gegevens:
Gemeente: Wassenaar
Sectie: B
Nummer: 12193
Grootte: 236 m²
Het betreft eigen grond.

Bouwjaar
2002

Parkeren
Op eigen terrein zijn 4 parkeerplaatsen aanwezig. Aan de openbare weg zijn voldoende parkeermogelijkheden aanwezig. Parkeren aan dit deel van de openbare weg is beginsel bedoelt voor dagparkeren. Hier mogen derhalve geen voertuigen voor langere tijd worden gestald.

Bestemming:
Het object is gelegen in het bestemmingsplan "Amonslaantje-Maaldrift 2013", onderdeel uitmakend van het Omgevingsplan en beschikt over de bestemming "Bedrijventerrein". De voor Bedrijventerrein aangewezen gronden zijn bestemd voor: bedrijven in de milieucategorieën 2 tot en met 3.2 van de Staat van bedrijfsactiviteiten.

Opleveringsniveau
De objecten wordt “as is, where is” geleverd. Koper aanvaardt het verkochte derhalve in de staat waarin het zich ten tijde van de koop bevindt. Het bedrijfsgebouw heeft de navolgende voorzieningen.
- Entree
- 2 toiletgroepen op de begane grond / 1 toilet met fonteintje op de verdieping
- Pantry voorzien van Daalderop close-in boiler
- Diverse ruimten voorzien van bewegingssensor voor de verlichting
- Elektrische overheaddeur
- Vrije hoogte bedrijfsruimte circa 6,4 m
- Vrije hoogte onder entree circa 3 m en onder entresol circa 2,9 m
- Degelijke entresolvloer met stalen trap (demontabel indien gewenst)
- Glad afgewerkte betonvloer
- Maximale vloerbelasting bedrijfsruimte circa 1.500 kg/m² / entresol circa 500 kg/m²
- Uitgebreide elektra met krachtstroom, vermogen 3 x 25 amp.Cv-installatie (Nefit Ecomline HR) met radiatoren en indirect gestookte heater
- Daklichten in bedrijfsruimte
- Stellingen in bedrijfsruimte (ter overname)
- Led-verlichtingsarmaturen in kantoorruimten / industriële Tl-verlichting in bedrijfsruimte
- Alarminstallatie
- Camerasysteem voorzien van 4 camera’s
- Brandslanghaspels / handbrandblussers
- Buitenverlichting
- Aluminium kozijnen met dubbel glas

Ondernemersvereniging
Sinds 2016 is bedrijventerrein Maaldrift een Bedrijven Investeringszone (BIZ). Hierdoor kunnen gezamenlijke activiteiten worden ontplooid om het ondernemersklimaat naar een hoger niveau te tillen. De BIZ-status is per 1 januari 2026 voor 5 jaar verlengt. Alle ondernemers zijn automatisch lid van de BIZ. De WOZ-afhankelijke bijdrage wordt door de gemeente geheven via de WOZ-aanslag.

De BIZ-heffing keert de gemeente uit aan de Vereniging Ondernemers Maaldrift (VOM /
http://vo-maaldrift.nl) die samen met haar leden de bestedingen van de BIZ coördineert. Voor het lidmaatschap van de VOM worden verder geen kosten berekend.

Energielabel
Er is geen energielabel beschikbaar, aangezien dat voor bedrijfsruimten niet nodig is.

Milieustatus
Het is verkoper niet bekend of het object enige verontreiniging bevat die ten nadele strekt van het huidige gebruik of die heeft geleid of naar de huidige normen ingevolge de wet of jurisprudentie zou kunnen leiden tot een saneringsverplichting van de grond en/of grondwater van het verkochte, dan wel tot het nemen van andere maatregelen.

Het is verkoper verder niet bekend of er milieubelastende of voor de volksgezondheid schadelijke materialen zoals asbest, in het verkochte zijn verwerkt die ten nadele strekken van het huidige gebruik of die heeft geleid of naar de huidige normen ingevolge de wet of jurisprudentie zou kunnen leiden tot een saneringsverplichting van de opstallen, dan wel tot het nemen van andere maatregelen.

Gezien het bouwjaar van het gebouw is het niet aannemelijk dat er asbest in het gebouw aanwezig is.

Koopprijs
€ 625.000,-- kosten koper (zegge zeshonderdvijfentwintigduizend euro kosten koper).

Omzetbelasting
Koper en verkoper zullen niet opteren voor een BTW belaste levering.

Instrumenterend notaris
Nader overeen te komen met koper.

Betaling
Betaling zal gelijktijdig met de eigendomsoverdracht plaatsvinden ten kantore van instrumenterend notaris.

Kosten
De kosten verbonden aan de eigendomsoverdracht, hieronder te verstaan de kosten van de koopovereenkomst en transportakte en eventueel verschuldigde overdrachtsbelasting zijn voor rekening van de koper.

Zekerheidstelling
Koper zal een bedrag gelijk aan 10% van de koopprijs storten op een door de instrumenterend notaris op te geven bankrekeningnummer van zijn kantoor, uiterlijk 14 dagen na definitieve overeenstemming. In plaats van storting van een waarborgsom kan koper ook een aan de instrumenterend notaris gerichte bankgarantie tot eenzelfde bedrag doen stellen, een en ander zoals te doen gebruikelijk.

Aanvaarding
In overleg.

Courtage
Mocht door bemiddeling van SITE Real Estate B.V. een transactie tot stand komen, zult u ons hiervoor geen kosten of courtage verschuldigd zijn.

Bezichtiging
Uitsluitend op afspraak.

Kaart

Kenmerken

Overdracht

Referentienummer
00064
Vraagprijs
€ 625.000,- k.k.
Inrichting
Niet gestoffeerd
Inrichting
Niet gemeubileerd
Status
Nieuw in verkoop
Aanvaarding
Direct
Aangeboden sinds
Woensdag 17 december 2025

Bouw

Type object
Bedrijfshal
Soort bouw
Bestaande bouw
Bouwperiode
2002

Oppervlaktes en inhoud

Perceeloppervlakte
236 m²
VVO
240 m²
In units vanaf
240 m²
Vrije hoogte
6,4 m.
Draagvermogen
1.500 kg/m²

Locatie

Ligging
Aan bosrand
Aan drukke weg
Aan rustige weg
Bedrijventerrein
Dichtbij openbaar vervoer
Nabij school
Nabij snelweg
Zelfstandig
Lokale voorzieningen
Bank op 1000 meter tot 1500 meter
Geldautomaat op 1000 meter tot 1500 meter
Recreatie binnen 500 meter
Restaurant binnen 500 meter
Winkel op 1000 meter tot 1500 meter
Supermarkt op 1000 meter tot 1500 meter
Bereikbaarheid
Bushalte binnen 500 meter
Treinstation op 3000 meter tot 4000 meter
Afrit van de snelweg binnen 500 meter

Uitrusting

Aantal parkeerplaatsen
4
Uitrusting
Betonvloer
Heater
Krachtstroom
Lichtstraten
Overheaddeuren
Pantry
Toilet

Kadastrale gegevens

Kadastrale aanduiding
Wassenaar B 12193
Perceeloppervlakte
236 m²
Omvang
Geheel perceel