Nieuw in verkoop:Ketelweg 12-11, 3356 LE Papendrecht - Foto
Nieuw in verkoop
+30

Ketelweg 12-11 3356 LE Papendrecht € 451.000,- v.o.n.

  • Bedrijfshal
  • Bouwjaar 2026
  • 208 m² vloeroppervlakte
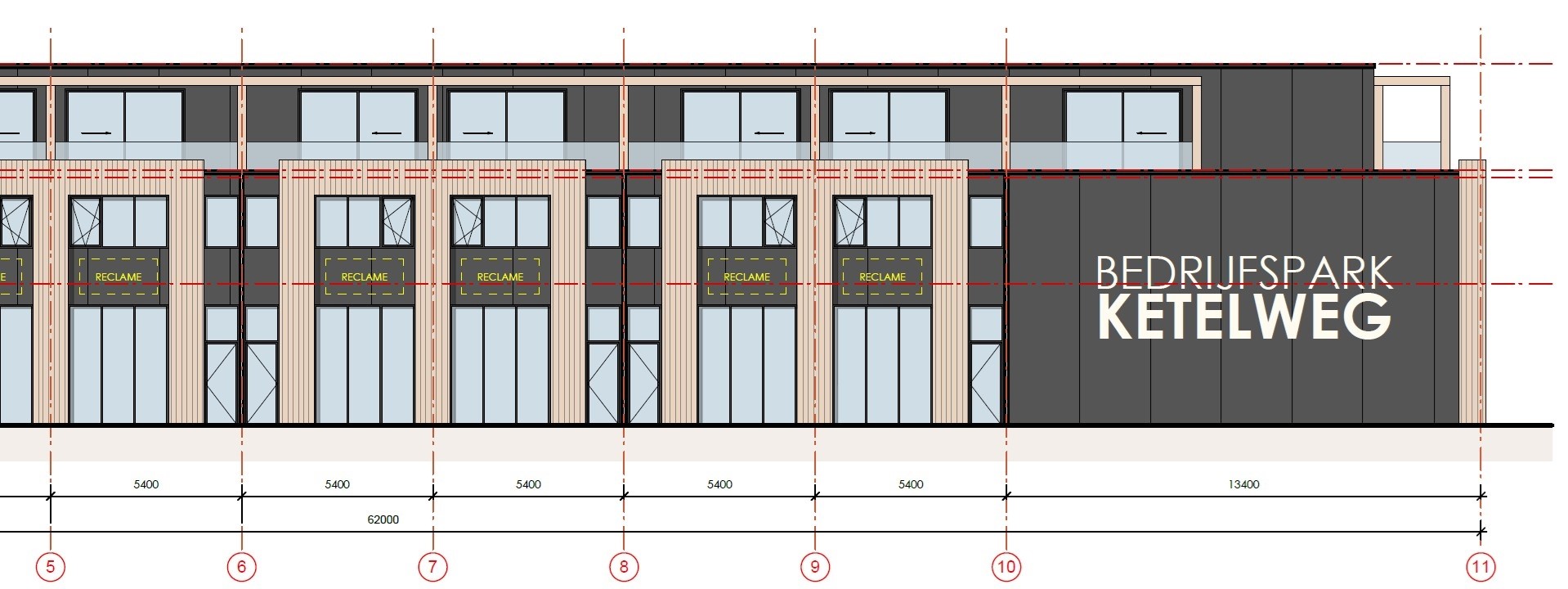
Bedrijfspark Ketelweg te Papendrecht. 19 Nieuwbouw bedrijfsunits met kantoorruimte Een nieuwe standaard in Bedrijfshuisvesting dankzij moderne architectuur met een hoogwaardige uitstraling.

Beschrijving

Te Koop
Bedrijfspark Ketelweg te Papendrecht. 19 Nieuwbouw bedrijfsunits met kantoorruimte. Een nieuwe standaard in Bedrijfshuisvesting dankzij moderne architectuur met een hoogwaardige uitstraling.

Algemeen
Bent u op zoek naar de perfecte locatie voor uw onderneming? Ontdek dit moderne nieuwbouw bedrijfspark aan de Ketelweg 12 in Papendrecht.

Bedrijfspark Ketelweg biedt ruimte aan ondernemers die verder kijken dan vandaag. De ontwikkeling bestaat uit 19 hoogwaardige bedrijfsunits die design, functionaliteit en flexibiliteit bieden.
De moderne bedrijfsunits zijn voorzien van royale glaspartijen, hoogwaardige materialen en gunstige indelingsmogelijkheden, in units vanaf 157 m² tot 269 m². Ondernemers vinden hier, zowel voor eigen gebruik als voor belegging, een solide bedrijfsomgeving met een representatieve uitstraling. Modern, representatief en volledig voorbereid op de toekomst. Bedrijven tot en met milieucategorie 4.1 zijn hier toegestaan.

Het project
Bedrijfspark Ketelweg bestaat uit 19 modern vormgegeven bedrijfsunits met een luxe uitstraling, ontworpen voor veelzijdig en toekomstbestendig gebruik. Dankzij de flexibele indelingsmogelijkheden zijn de units geschikt voor kantoor, showroom, atelier, opslag of combinatievormen.
De architectuur, het materiaalgebruik en de hoogwaardige afwerking geven het project een uitstraling die normaal gesproken wordt aangetroffen bij hoogwaardige kantoor- en gemengde bedrijfsontwikkelingen.

Metrage en koopsom
Unit 11: Begane grond 71,1 m², 1e verdieping 71,1 m², 2e verdieping 54,8 m², dakterras 10,7 m², totaal 207,7 m², Koopsom € 451.000,-- v.o.n.

NB: Oppervlaktes zijn indicatief (ca. BVO), inclusief verdiepingen en eventuele dakterrassen. Units kunnen worden gekoppeld.

Bestemming
Het nieuwbouwproject is gelegen binnen bestemmingsplan “Bedrijventerrein Oosteind en heeft de bestemming bedrijven tot en met categorie 4.1.
Wij adviseren u om de door u gewenste functie te controleren bij het omgevingsloket / regels op de kaart via www.omgevingswet.overheid.nl/regels-op-de-kaart.

Projectkenmerken:
- Moderne architectuur met hoogwaardige uitstraling met Kwalitatieve materialen
- Flexibele indeling geschikt voor diverse bedrijfsmodellen
- Bestemming bedrijven tot en met categorie 4.1
- Twee tot drie bouwlagen
- Representatieve uitstraling
- 2 parkeerplaatsen per unit op eigen terrein

Indeling en functionaliteit
De bedrijfsunits zijn ontworpen met maximale flexibiliteit als uitgangspunt. Dankzij royale vloerhoogtes, efficiënte indelingen en een sterke constructie kunnen ondernemers de ruimte volledig afstemmen op hun bedrijfsvoering. De units kunnen worden gebruikt als kantoor, showroom, opslag, creatieve studio’s, productie- en werkruimtes, of combinaties hiervan.

Optionele uitbreidingen en indelingen:
- Sectionaaldeur op de begane grond
- Samenvoegen van meerdere units
- Kantooropbouw op de verdieping
- Pantry- en sanitaire voorzieningen

Architectuur en materialen
De architectuur van Bedrijfspark Ketelweg kenmerkt zich door strakke lijnen en hoogwaardige materialen. De combinatie van donkere gevelbekleding met verticale houten accenten zorgt voor een luxe, tijdloze uitstraling. Grote raampartijen bieden veel daglicht en versterken de representatieve uitstraling van iedere bedrijfsunit.

- Donkere gevelpanelen met hoogwaardige coating
- Verticale houten lamellen
- Royale glaspartijen met aluminium kozijnen
- Strakke, moderne lijnen
- Duurzame en onderhoudsarme materialen
- Zorgvuldige detaillering in gevels, hoeken en dakranden
- Stijlvol, modern en tijdloos.

Technische specificaties
Elke technische keuze binnen Bedrijfspark Ketelweg is gemaakt met oog voor duurzaamheid, kracht en functionaliteit. De bedrijfsunits hebben onder andere de navolgende voorzieningen en specificaties:
- Vloerbelasting begane grond 1.500 kg/m²
- Vloerbelasting verdiepingen 400 kg/m²
- Hoogwaardige betonnen vloeren
- PIR-dakisolatie
- Dak voorbereid voor zonnepanelen
- Energiezuinig ontwerp
- Parkeren op eigen terrein met 2 parkeerplaatsen per unit
- Professionele hemelwaterafvoer
- Representatieve entree
- Robuuste, duurzame constructie

Splitsing in appartementsrechten en Vereniging van Eigenaren
Het terrein zal worden gesplitst in appartementsrechten en ieder appartement krijgt een eigen Appartementsindex. Iedere appartementseigenaar wordt van rechtswege verplicht lid van de Vereniging van eigenaren.

Locatie
Bedrijfspark Ketelweg is gelegen op een strategische zich locatie in de regio Drechtsteden. Een strategisch gelegen locatie die bereikbaarheid en functionaliteit perfect combineert. Gelegen op een goed ontsloten bedrijventerrein, met snelle verbindingen richting de N3, A15 en A-16 vormt deze locatie een ideale uitvalsbasis voor ondernemers die centraal willen opereren in de regio Drechtsteden en Rotterdam.

De omgeving kenmerkt zich door een dynamische mix van bedrijven, ruime opzet en uitstekende logistieke mogelijkheden. Of u nu op zoek bent naar een praktische bedrijfsruimte, opslag of een representatieve vestigingslocatie: Ketelweg 18 biedt de basis voor groei en succes.

Deze mix van productie, logistiek, techniek en dienstverlening maakt de locatie aantrekkelijk voor bedrijven die willen profiteren van de bedrijvigheid en samenwerkingsmogelijkheden in de regio.

Bereikbaarheid
Per eigen vervoer
De locatie is uitstekend bereikbaar met de auto. Ketelweg ligt centraal op bedrijventerrein Oosteind en vormt een directe verbinding met de omliggende infrastructuur. Via de N3, de A15 en de A16 ben je snel onderweg richting Rotterdam, Dordrecht en de rest van de regio, ideaal voor zakelijke ritten en logistiek verkeer. Parkeren rondom de bedrijfsruimten is doorgaans goed mogelijk en er zijn wegen die geschikt zijn voor vracht- en bedrijfsvervoer.

Per openbaar vervoer
Ook met het openbaar vervoer is Ketelweg goed te bereiken. In de directe omgeving stoppen meerdere buslijnen — waaronder lijn 388 — bij haltes zoals Papendrecht Ketelhaven op slechts ca. 5 minuten lopen van Ketelweg. Een andere bushalte is Papendrecht Rosmolenweg, circa 9 minuten wandelen.

Voor treinreizigers is het station Sliedrecht Baanhoek het dichtstbijzijnde spoorpunt. Direct bij het station stoppen regionale buslijnen zoals lijn 388 die richting Papendrecht rijdt.
Daarnaast zijn er veerdiensten in de buurt (zoals over de rivier tussen Papendrecht en Dordrecht) die aanvullende OV-mogelijkheden bieden voor woon-werkverkeer en bezoekers.

Dankzij deze mix van auto- en openbaar-vervoeropties is Ketelweg 18 goed bereikbaar voor werknemers, klanten en zakelijke relaties uit de hele regio.

Uitstekende keuze voor Beleggers
Een bedrijfsunit in Bedrijfspark Ketelweg is een solide keuze voor de toekomst. Dankzij de combinatie van hoogwaardige uitstraling, schaarste aan moderne bedrijfsruimte en strategische ligging vormt Bedrijfspark Ketelweg een aantrekkelijk beleggingsobject binnen de regio Drechtsteden.
Beleggers profiteren van:
- Hoge verhuurpotentie door sterke regionale vraag
- Lage exploitatie- en onderhoudskosten
- Waardevast bedrijfsmatig vastgoed
- Luxe uitstraling met een sterk professioneel imago
- Geschikt voor diverse branches
- Een investering die meegroeit met de regio én met uw portefeuille.

Planning
Start bouw: verwachting circa medio 2026
Bouwperiode: circa 11 maanden.
Oplevering: circa 2e kwartaal 2027.

Instrumenterend notaris
De door de ontwikkelaar/ verkoper aangestelde projectnotaris is Maes Notarissen te Vlaardingen

Kaart

Kenmerken

Overdracht

Referentienummer
00078
Vraagprijs
€ 451.000,- v.o.n.
Inrichting
Niet gestoffeerd
Inrichting
Niet gemeubileerd
Status
Nieuw in verkoop
Aanvaarding
In overleg
Aangeboden sinds
Woensdag 18 februari 2026

Bouw

Type object
Bedrijfshal
Soort bouw
Nieuwbouw
Bouwperiode
2026

Oppervlaktes en inhoud

VVO
207,7 m²
Vrije hoogte
3,5 m.
Draagvermogen
1.500 kg/m²

Locatie

Ligging
Bedrijventerrein
Dichtbij openbaar vervoer
Havengebied
Industrieterrein
Kantorenpark
Nabij snelweg
Zelfstandig
Bereikbaarheid
Bushalte binnen 500 meter
Treinstation op 2000 meter tot 3000 meter
Afrit van de snelweg op 1000 meter tot 1500 meter

Uitrusting

Aantal parkeerplaatsen
2
Uitrusting
Betonvloer
Overheaddeuren
Pantry
Toilet

Brochure(s) en overige bijlagen

2026-0130 Bedrijfspark Ketelweg pdf .pdf Download