Verhuurd:Koningin Julianalaan 227, 2273 JE Voorburg - Foto
Verhuurd
Verhuurd:Koningin Julianalaan 227, 2273 JE Voorburg - Foto
Verhuurd:Koningin Julianalaan 227, 2273 JE Voorburg - Foto
+1

Koningin Julianalaan 227 2273 JE Voorburg

  • Kantoor
  • Bouwjaar 1962
  • 312 m² vloeroppervlakte

Beschrijving

Algemeen
Het betreft een modern kantoorgebouw met hoge attentiewaarde welke is gelegen op een goede locatie in winkelcentrum “Julianabaan” te Voorburg.

Adres
Koningin Julianalaan 227, 2273 JE Voorburg.

Locatie
Het kantoorgebouw is gelegen nabij de Prins Bernhardlaan en de Mgr. Van Steelaan. Bij het object ligt het gerenoveerde winkelcentrum `Julianabaan’, waar diverse landelijke en plaatselijke ondernemers een vestiging hebben, zoals Albert Heijn, Hema, Videoland, Gall & Gall, McDonalds, Blokker etc. In de directe nabijheid zijn onder andere FNV Bondgenoten, de bibliotheek en theater De Tobbe gesitueerd. Tevens zijn er in de omgeving diverse lunch- en restaurant gelegenheden.

Vloeroppervlak
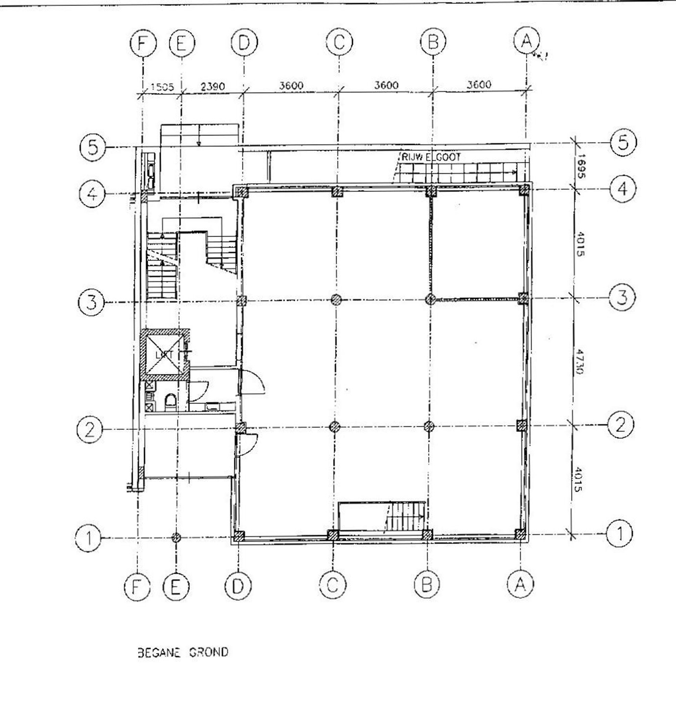
Voor verhuur is beschikbaar een totale oppervlakte van circa 312 m², onderverdeeld als volgt:

Begane grond : circa 157 m²
Souterrain : circa 155 m²

De oppervlakte is gemeten volgens NEN 2580.

Parkeren
Er is eventueel één parkeerplaats op eigen terrein voor verhuur beschikbaar. Gratis en ruim voldoende parkeerfaciliteiten zijn in de directe omgeving van het kantoorpand aanwezig. Voorts beschikt het object over een eigen fietsenstalling.

Bereikbaarheid
Het gebouw is met het eigen vervoer zeer goed bereikbaar. Via de Prins Bernhardlaan vindt men directe aansluiting op de Utrechtsebaan (A-12 Den Haag-Utrecht).
Ook met het openbaar vervoer is het kantoorgebouw goed te bereiken, midden in de driehoek station Laan van Nieuw Oost Indië - station Voorburg - station Voorburg ’t Loo is een goede treinverbinding gewaarborgd. In de directe omgeving hebben buslijn 23 en tramlijn 2 een halteplaats.

Huurprijs
€ 95,- per m² per jaar, te vermeerderen met BTW.

Wijze van oplevering
Het object wordt in huidige staat opgeleverd, onder meer voorzien van:
- Individueel regelbare CV-radiatorkranen;
- Zonwering;
- Te openen ramen;
- Keuken met eigen vaatwasser en koelkast;
- Huidige vloerbedekking.

Servicekosten
De vaste bijdrage voor de service- en energiekosten bedragen € 35,00 per m² per jaar, te vermeerderderen met BTW voor de navolgende leveringen en diensten:

Energielevering:
? Gasverbruik, inclusief vastrecht;
? Elektraverbruik, inclusief vastrecht;
? Waterverbruik, inclusief vastrecht.

Servicediensten:
? Periodieke glasbewassing van voorgevel, zijgevel, achtergevel en omlijstingen;
? Periodieke controle van technische installaties en standleidingen;
? Periodiek onderhoud van CV-installatie alsmede het verhelpen van storingen;
? Onderhoud van zonwering;
? Periodiek onderhoud van toegangsdeuren;
? Periodiek liftonderhoud, inclusief jaarlijkse controle (Liftinstituut);
? Periodieke controle van hemelwaterafvoer, goten en daken;
? Onderhoud en schoonmaak van trappenhuis en gemeenschappelijke ruimtes.

Huurtermijn
Vijf jaren + vijf optiejaren.

Huurovereenkomst
Huurovereenkomst kantoorruimte en andere bedrijfsruimte in de zin van artikel 7:230a BW conform het model door de Raad voor Onroerende Zaken (ROZ), alsmede de daarbij behorende algemene bepalingen en aanvullende bepalingen van verhuurder.

Opzegtermijn
6 maanden voor expiratiedatum.

Zekerheidstelling
Een waarborgsom ter grootte van één (1) maand huur en servicekosten te vermeerderen met BTW.

Huurprijsaanpassing
Jaarlijks, voor het eerst één (01) jaar na ingangsdatum huurovereenkomst.

Huurprijsbetaling
Per kalendermaand vooruit te voldoen.

Aanvaarding
Per direct.

Kaart

Kenmerken

Overdracht

Referentienummer
00332
Servicekosten
€ 35,- per maand
Status
Verhuurd
Aanvaarding
In overleg
Aangeboden sinds
Donderdag 24 september 2015
Laatste wijziging
Dinsdag 1 april 2025

Bouw

Type object
Kantoor
Soort bouw
Bestaande bouw
Bouwperiode
1962

Oppervlaktes en inhoud

VVO
312 m²
Inhoud
1 m³

Indeling

Aantal bouwlagen
2

Locatie

Ligging
Nabij winkelcentrum

Media

Foto's