Verhuurd:Prins Frederiklaan 177, 2263 HA Leidschendam - Foto
Verhuurd
+13

Prins Frederiklaan 177 2263 HA Leidschendam

  • Winkelruimte
  • Bouwjaar 1999
  • 193 m² vloeroppervlakte

Beschrijving

Algemeen
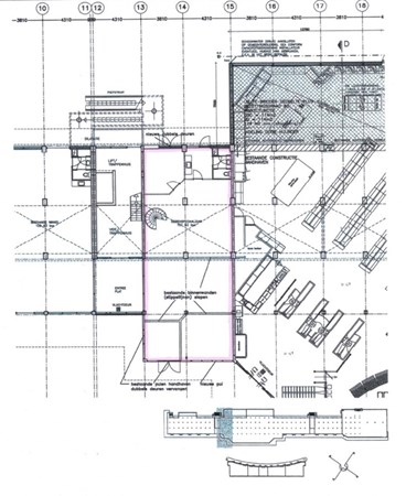
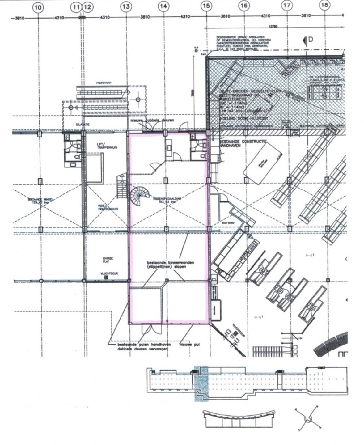
Het betreft een representatieve winkelruimte van totaal 193 m² B.V.O., bestaande uit circa 157 m² B.V.O. op de begane grond en circa 36 m² B.V.O. op de 1e verdieping. De winkelruimte is centraal gelegen in het gerenoveerde winkelcentrum “Prinsenhof”, direct naast de entree van Plus Supermarkt. De winkel is momenteel in gebruik als dierenwinkel. Diverse inventaris van de vertrekkende huurder is in overleg ter overname.

Adres
Prins Frederiklaan 177, 2263 HA Leidschendam.

Locatie
De winkelruimte is gelegen in Winkelcentrum Prinsenhof te Leidschendam. In 2012 is Winkelcentrum De Prinsenhof gerenoveerd en opnieuw ingericht en zijn de winkelvoorzieningen uitgebreid. In het winkelcentrum zijn onder meer Plus Supermarkt, Aldi, Trekpleiser, Wibra en diverse lokale speciaalzaken gevestigd, zoals een bakker, een kaaswinkel en een bloemenwinkel.

Bereikbaarheid
Het winkelcentrum is goed bereikbaar met het openbaar vervoer. Zowel met de tram lijn 2 als per bus lijn 39 en 47 vanaf halte Dillenburgsingel is de wijk goed bereikbaar. De Prinsenhof is een wijk met een gevarieerd woningaanbod, en een bijzonder binnengebied met onder andere een Brede School en volop ruimte voor recreatie en speelplekken voor kinderen van alle leeftijden.

Parkeren
Er is voldoende gratis parkeergelegenheid op de parkeerterreinen rondom het winkelcentrum.

Oppervlakte
Circa 157 m² B.V.O. winkelruimte op de begane grond en circa 36 m² B.V.O. kantoor / opslagruimte op de 1e verdieping.

De te huren ruimte is onderverdeeld in de winkelruimte, een achtergelegen (voorraad)kamer, een keukenruimte met toegang tot toilet. De winkelruimte heeft een achteruitgang. Middels een vaste trap is de 1e verdieping bereikbaar, alwaar 2 kamers zijn gesitueerd, die kunnen worden gebruikt voor opslag.

Frontbreedte
Circa 7 meter.

Voorzieningen
De winkelruimte is onder andere voorzien van de navolgende voorzieningen:
- Aluminium winkelpui met 2 openslaande deuren.
- Vloer met houtlook PVC
- Gedeeltelijk voorzien van systeemplafond met inbouw verlichting;
- Keukenruimte voorzien van pantry, betegelde toilet, bergruimte, met achteruitgang;
- meterkast, voorzien van uitgebreide elektra;
- bergruimte achterzijde winkel, met achteruitgang.
- Open trap naar 1e verdieping, waar 2 kamers zijn met systeemplafonds voorzien van verlichtingsarmaturen.

Huurprijs winkelruimte
€ 3.312,50 per maand / € 39.750,-- per jaar, te vermeerderen met BTW.

Servicekosten
€ 10,-- per maand / € 120,- per jaar, te vermeerderen met BTW, op basis van voorschot met nacalculatie.

BTW
Verhuurder wenst te opteren voor BTW belaste verhuur. Indien niet geopteerd kan worden voor BTW belaste verhuur, zal de huurprijs met een nader te bepalen bedrag worden verhoogd.

Betalingen
Per kalenderkwartaal vooruit te voldoen.

Indexering
Jaarlijks, voor het eerst één (01) jaar na ingangsdatum huurovereenkomst.

Opleveringsniveau
Het gehuurde wordt in de alsdan aanwezig staat opgeleverd en er zal sprake zijn van een casco verhuur.

Huurtermijn
Vijf jaren + vijf optiejaren.

Opzegtermijn
12 maanden.

Zekerheidsstelling
Een onvoorwaardelijke bankgarantie ter grootte van tenminste drie (3) maanden huur, te vermeerderen met BTW.

Huurovereenkomst
Huurovereenkomst winkelruimte en andere bedrijfsruimte in de zin van artikel 7:290 BW conform het model door de Raad voor Onroerende Zaken (ROZ) in 2012 vastgesteld, alsmede de daarbij behorende algemene bepalingen en aanvullende bepalingen van verhuurder.

Aanvaarding
In overleg.

Kaart

Kenmerken

Overdracht

Referentienummer
00027
Huurprijs
€ 3.310,- per maand
Servicekosten
€ 10,- per maand
Inrichting
Niet gestoffeerd
Inrichting
Niet gemeubileerd
Status
Verhuurd
Aanvaarding
In overleg
Aangeboden sinds
Woensdag 2 april 2025
Laatste wijziging
Maandag 16 februari 2026

Bouw

Type object
Winkelruimte
Soort bouw
Bestaande bouw
Bouwperiode
1999

Oppervlaktes en inhoud

VVO
193 m²
In units vanaf
193 m²
Inhoud
1 m³
Verkoopoppervlakte
157 m²

Indeling

Aantal bouwlagen
2

Locatie

Ligging
Dichtbij openbaar vervoer
In woonwijk
Nabij winkelcentrum
Lokale voorzieningen
Geldautomaat binnen 500 meter
Recreatie binnen 500 meter
Restaurant binnen 500 meter
Winkel binnen 500 meter
Supermarkt binnen 500 meter
Bereikbaarheid
Bushalte binnen 500 meter
Treinstation op 1500 meter tot 2000 meter
Afrit van de snelweg op 1500 meter tot 2000 meter
Tramhalte binnen 500 meter

Uitrusting

Heeft een showroom
Ja

Media

Plattegronden