Nieuw in verhuur:Nieuwstraat 2A, 2266 AD Leidschendam - Foto
Nieuw in verhuur
+22

Nieuwstraat 2A 2266 AD Leidschendam € 58.000,- /jr

  • Bedrijfshal
  • Bouwjaar 1998
  • 494 m² vloeroppervlakte
Vrijstaande bedrijfsruimte in Leidschendam

Beschrijving

Algemeen
Vrijstaande bedrijfsruimte van totaal circa 494 m² te huur aan de Nieuwstraat 2a te Leidschendam-Voorburg. Het betreft de linker helft van een vrijstaand bedrijfsgebouw, gelegen aan de rand van bedrijfsterrein Overgoo in Leidschendam. De rechter helft van het gebouw is momenteel in gebruik bij de gemeente Leidschendam - Voorburg.

Het object is in 1998 opgeleverd en verkeert in goede staat van onderhoud. Wegens de prominente ligging, uitstraling en voldoende parkeergelegenheid is dit object niet alleen voor lokale, maar zeer zeker ook voor regionale bedrijven een geschikt bedrijfsgebouw.

Het bedrijfspand beschikt over een efficiënte indeling en heeft de beschikking over een ruime bedrijfshal met mooie vrije hoogte, een solide entresol voor extra opslag, een toiletruimte en een beperkte kantoorruimte van circa 9 m².

Adres
Nieuwstraat 2-a te Leidschendam-Voorburg

Locatie
Dit functionele gebouw is gesitueerd op een goede locatie aan de buitenrand van Leidschendam. Vanaf de Rijksweg A4 vormt deze locatie de entree van Leidschendam.

Bereikbaarheid
Auto
Door de ligging van het object is het Rijkswegennet makkelijk bereikbaar via de uitvalswegen naar de A4, A12 en A13. Ook de naastgelegen Sytwendetunnel is een goede verbindingsweg richting Voorburg, Wassenaar (A44) en Den Haag (Noordelijke Randweg).

Openbaar vervoer
De haltes van buslijnen 39, 45 en 47 zijn op enkele minuten loopafstand gelegen.
Het NS Station Leidschendam-Voorburg, Voorburg en Den Haag Centraal Station zijn via deze verbindingen uitstekend te bereiken.

Vloeroppervlak
Begane grond: bedrijfsruimte circa 426 m² v.v.o.
Entresol: opslagruimte circa 68 m² v.v.o.
Totaal: circa 494 m² v.v.o.

Genoemde metrages zijn van tekening en op locatie ingemeten en zijn een globale weergave. Dit betreft geen NEN2580 meting en hier kunnen geen rechten aan worden ontleend.

Opleveringsniveau
Het object is onder meer voorzien van de navolgende faciliteiten:
- 5 elektrisch bedienbare overheaddeuren;
- Glad afgewerkte betonvloer;
- Maximale vloerbelasting begane grond circa 1.000 kg / m²;
- Vrije hoogte ca. 5-7 m;
- Industriële verlichtingsarmaturen;
- Daklicht;
- Diverse brandslanghaspels en poederblussers;
- 2 boilers;
- Heaters en radiatoren.

Parkeren
Er is voldoende gratis parkeergelegenheid op de openbare ruimte gelegen voor het object.

Bestemming:
Het object heeft de bestemming "Bedrijf”. De voor “Bedrijf” aangewezen gronden zijn bestemd voor: bedrijven tot milieucategorie 2 van de Staat van bedrijfsactiviteiten.

Bouwjaar
1998

Energielabel
Er is geen energielabel beschikbaar, aangezien dat voor bedrijfsruimten niet nodig is.

Huurprijs
€ 58.000,= per jaar, te vermeerderen met BTW.

BTW
Verhuurder wenst te opteren voor BTW belaste verhuur. Indien niet geopteerd kan worden voor BTW belaste verhuur, zal de huurprijs met een nader te bepalen bedrag worden verhoogd.

Indexering
Jaarlijks, voor het eerst 1 jaar na ingebruikname, op basis van de wijziging van het maandprijsindexcijfer volgens de consumentenprijsindex (CPI), reeks CPI alle huishoudens (2015=100), gepubliceerd door het Centraal Bureau voor de Statistiek (CBS). De volgens het bovenstaande geïndexeerde huurprijs zal nimmer lager zijn dan die van de voorafgaande huurjaren.

Servicekosten:
Niet van toepassing.

Huurder dient zelf zorg te dragen voor het periodiek onderhoud van de installaties.
Een deel van de nutsvoorzieningen loopt via de naastgelegen ruimte waar de hoofmeter zit. Het verbruik wordt vastgesteld middels een tussenmeter en huurder dient dit rechtstreeks af te rekenen met de naastgelegen gebruiker.

Betalingen
Per kalenderkwartaal vooruit te voldoen.

Huurtermijn
5 jaar met verlengingen van telkens 5 jaar. Kortere termijn is eventueel bespreekbaar.

Opzegtermijn
12 maanden voor expiratiedatum.

Zekerheidsstelling
Bankgarantie ter grootte van een betalingsverplichting van drie maanden huur, inclusief servicekosten en BTW.

Huurovereenkomst
Huurovereenkomst kantoorruimte en andere bedrijfsruimte in de zin van artikel 7:230a BW conform het model door de Raad voor Onroerende Zaken (ROZ) in januari 2015 vastgesteld, alsmede de daarbij behorende algemene bepalingen en bijzondere bepalingen van verhuurder.

Aanvaarding
Per direct.

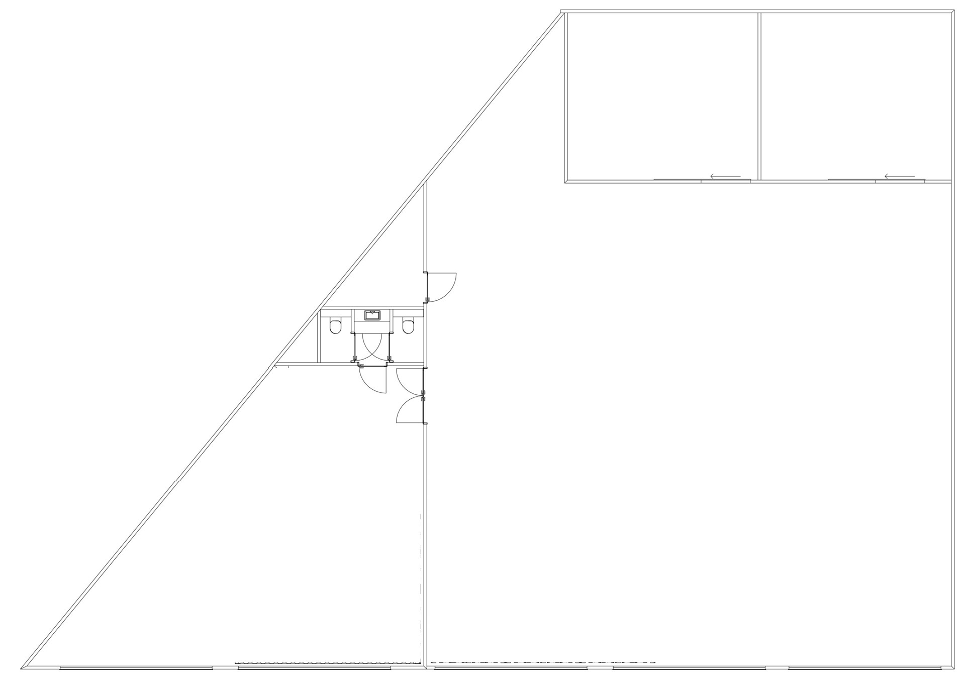
Indeling

Vloeroppervlak
Begane grond: bedrijfsruimte circa 426 m² v.v.o.
Entresol: opslagruimte circa 68 m² v.v.o.
Totaal: circa 494 m² v.v.o.

Kaart

Kenmerken

Overdracht

Referentienummer
00088
Huurprijs
€ 58.000,- per jaar
Borg
€ 17.550,-
Inrichting
Niet gestoffeerd
Inrichting
Niet gemeubileerd
Status
Nieuw in verhuur
Aanvaarding
Direct
Aangeboden sinds
Maandag 9 maart 2026

Bouw

Type object
Bedrijfshal
Soort bouw
Bestaande bouw
Bouwperiode
1998

Oppervlaktes en inhoud

VVO
494 m²
In units vanaf
494 m²
Vrije hoogte
7 m.
Draagvermogen
1.000 kg/m²

Locatie

Ligging
Aan rustige weg
Bedrijventerrein
Dichtbij openbaar vervoer
Industrieterrein
Kantorenpark
Nabij school
Nabij snelweg
Zelfstandig
Lokale voorzieningen
Bank binnen 500 meter
Geldautomaat binnen 500 meter
Recreatie op 500 meter tot 1000 meter
Restaurant binnen 500 meter
Winkel binnen 500 meter
Supermarkt binnen 500 meter
Bereikbaarheid
Bushalte binnen 500 meter
Treinstation op 1000 meter tot 1500 meter
Afrit van de snelweg op 500 meter tot 1000 meter
Tramhalte op 1000 meter tot 1500 meter

Uitrusting

Uitrusting
Betonvloer
Heater
Lichtstraten
Overheaddeuren
Pantry
Toilet

Media

Plattegronden