Huur:Stationsplein 69T, 2515 BW Den Haag - Foto
+7

Stationsplein 69T 2515 BW Den Haag € 60.000,- /jr

  • Winkelruimte
  • Bouwjaar 2017
  • 309 m² vloeroppervlakte

Beschrijving

Algemeen
Het betreft de commerciële plint van het multi-use gebouw “The Y” gelegen aan het
Stationsplein / de Hofwijckstraat te Den Haag. Het gebouw is gelegen aan het compleet nieuwe ingerichte Stationsplein Hollands Spoor en wordt gekenmerkt door haar goede bereikbaarheid en parkeervoorziening. Een groot deel van deze commerciele plint is reeds verhuurd aan sportschool Basic Fit.

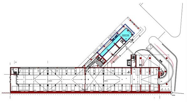
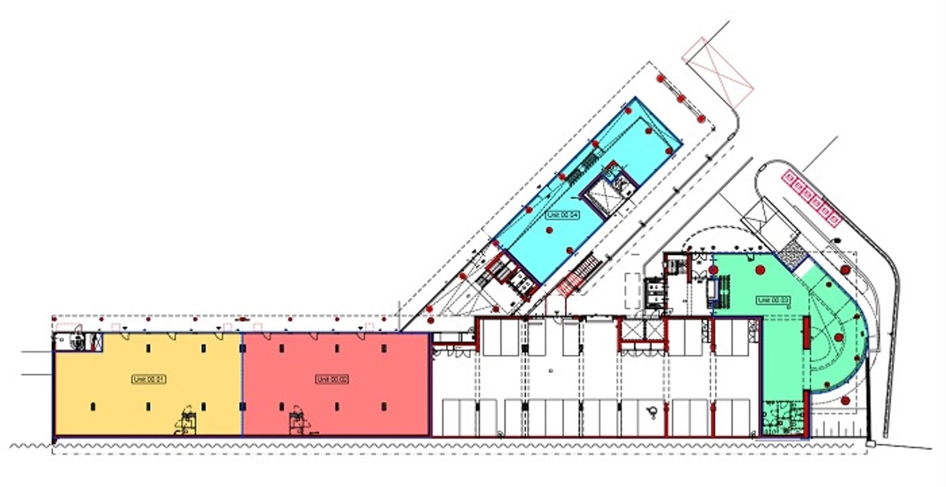
Beschikbaar metrage
Unit blauw (04) is nog beschikbaar voor verhuur en bestaat uit:
Begane grond: circa 217 m²
1e verdieping: circa 92 m²
Totaal circa 309 m²

De frontbreedte is circa 27 meter.

Adres en postcode
Stationsplein 69-T (2515 BW) Den Haag

Locatie
Het gebouw ligt op een zeer goed te bereiken locatie in het verlengde van het Stationsplein NS station Den Haag Hollands Spoor. Het gebied kent een grote verscheidenheid aan gebruikers. In de directe omgeving zijn diverse winkelstraten gelegen en bevinden zich in ruime mate voorzieningen zoals detailhandel, dienstverlening, horecagelegenheden en (studenten) hotels.

Bereikbaarheid
Eigen vervoer
De bereikbaarheid met eigen vervoer is uitstekend te noemen. Het Stationsplein is zeer gunstig gelegen ten opzichte van het Rijkswegennet (A4 Den Haag - Amsterdam, A12 Den Haag - Utrecht, A13 Den Haag - Rotterdam). Tevens bevinden zich op loopafstand diverse parkeervoorzieningen.

Openbaar vervoer
Trein: Doorgaande treinen van en naar Amsterdam en Rotterdam zijn bereikbaar via Station Hollands Spoor.
Bus 18 en 22 en tram 9 zorgen voor een goede ontsluiting van dit gebied en bevinden zich op loopafstand.

Huurprijs winkelruimte
€ 60.000,= per jaar, te vermeerderen met BTW.

Servicekosten
De kosten van levering van zaken en diensten bedragen € 5,= per m² per jaar te vermeerderen met BTW, op voorschotbasis met nacalculatie in het kalenderjaar daaropvolgend, ten behoeve van de volgende door verhuurder te verzorgen leveringen en diensten:
- Beveiliging
- Glasbewassing
- Vuilafvoer
- Huismeester

Huurder dient voor eigen rekening en risico overeenkomsten te sluiten met de desbetreffende (nuts)bedrijven.

Parkeren
Parkeren is geen enkel probleem. In het gebouw bevindt zich een afgesloten parkeergarage waar huurders van het gebouw een parkeerplaats kunnen huren. Overigens bevinden zich in de directe omgeving voldoende (on)betaalde parkeerplaatsen. Tevens zijn er diverse voorzieningen voor het parkeren van fietsen.

Huurprijs parkeerplaatsen
De kosten van de parkeerplaatsen zijn € 167,00 per plaats per maand incl. BTW, de plaatsen kunnen worden gehuurd bij de exploitant van de Haagse Toren.

Gebruik
Conform artikel 7:290 BW als detailhandelsruimte.

BTW
Verhuurder wenst te opteren voor een BTW belaste verhuur. Indien niet geopteerd kan worden voor BTW belaste verhuur, zal de huurprijs met een nader te bepalen bedrag worden verhoogd.

Indexering
Jaarlijks, voor het eerst één (01) jaar na ingangsdatum huurovereenkomst, op basis van de wijziging van het maandprijsindexcijfer volgens de consumentenprijsindex (CPI), reeks CPI alle huishoudens (2015=100), gepubliceerd door het Centraal Bureau voor de Statistiek (CBS). De volgens het bovenstaande geïndexeerde huurprijs zal nimmer lager zijn dan die van de voorafgaande huurjaren.

Betalingen
Per kalenderkwartaal vooruit te voldoen.

Opleveringsniveau
Het definitieve opleveringsniveau zal in overleg tussen partijen worden vastgesteld. Het uitgangspunt is oplevering in de huidige staat, zijnde casco.

Huurtermijn
Vijf jaar met aansluitende optieperioden van telkens vijf jaar.

Opzegtermijn
12 maanden voor het verstrijken van de lopende huurtermijn.

Zekerheidstelling
Een onvoorwaardelijke bankgarantie ter grootte van tenminste drie (3) maanden huur en servicekosten te vermeerderen met de wettelijk verschuldigde omzetbelasting.

Huurovereenkomst
Huurovereenkomst winkelruimte en andere bedrijfsruimte in de zin van artikel 7:290 BW conform het model door de Raad voor Onroerende Zaken (ROZ), alsmede daarbij behorende algemene bepalingen en standaardbepalingen van verhuurder.

Aanvaarding
In overleg.

Kaart

Kenmerken

Overdracht

Referentienummer
00031
Huurprijs
€ 60.000,- per jaar
Servicekosten
€ 1.545,- per jaar
Inrichting
Niet gestoffeerd
Inrichting
Niet gemeubileerd
Aanvaarding
In overleg
Aangeboden sinds
Donderdag 3 april 2025

Bouw

Type object
Winkelruimte
Soort bouw
Bestaande bouw
Bouwperiode
2017

Oppervlaktes en inhoud

VVO
309 m²
In units vanaf
309 m²
Inhoud
1 m³
Verkoopoppervlakte
217 m²

Indeling

Aantal bouwlagen
2

Locatie

Ligging
Dichtbij openbaar vervoer
In centrum
In woonwijk
Nabij snelweg
Nabij treinstation
Nabij winkelcentrum
Lokale voorzieningen
Bank binnen 500 meter
Geldautomaat binnen 500 meter
Recreatie binnen 500 meter
Restaurant binnen 500 meter
Winkel binnen 500 meter
Supermarkt binnen 500 meter
Bereikbaarheid
Bushalte binnen 500 meter
Busknooppunt binnen 500 meter
Treinstation binnen 500 meter
Afrit van de snelweg binnen 500 meter
Tramhalte binnen 500 meter
Tramknooppunt binnen 500 meter

Uitrusting

Heeft een showroom
Ja

Media

Foto's

Plattegronden