Huur:Nassaulaan 11-10, 2514 JS Den Haag - Foto
+37

Nassaulaan 11-10 2514 JS Den Haag € 190,-/m2/mnd

  • Kantoor
  • Bouwjaar 1847
  • 1.348 m² vloeroppervlakte

Beschrijving

Algemeen
Het betreft een monumentaal kantoorgebouw van circa 1.348 m² v.v.o., gelegen aan de statige Nassaulaan 10 en 11 in Den Haag. Door de samenvoeging van huisnummer 10 en huisnummer 11 zijn er splitlevel vloeren op alle niveaus. Waardoor een speelse indeling is ontstaan. Aan de achterzijde van het gebouw is een ruimte tuin gelegen, die ruimte biedt voor parkeren van personenauto’s en fietsen.

Het betreffen Rijksmonumenten met nr. 17786 en 17787 en zijn intern met elkaar verbonden. De objecten zijn onderdeel van een tussen 1845 en 1847 in opdracht van koning Willem II gebouwd complex bestaande uit een voormalige manege (Nassaulaan 12) met aan weerszijden blokken woningen (Nassaulaan 3 t/m 11 en 13 t/m 23). Dit is een voor Nederland uniek voorbeeld van planmatige aanleg in het midden van de 19e eeuw.

Locatie
Het monumentale kantoorgebouw is gelegen in de historische villawijk het Willemspark. Deze omgeving is in het midden van de 19e eeuw ontwikkeld in opdracht van Koning Willem II. Dit park, gelegen aan de rand van het centrum, ligt tussen de Mauritskade en de Javastraat. In de naaste omgeving zijn diverse voorzieningen in de bekende Haagse winkelstraten de Frederikstraat en de Denneweg. Tevens is de gezellige Bankastraat op loopafstand gelegen met diverse eet- en drinkgelegenheden. Naast gerenommeerde organisaties en de Vereniging van Nederlandse Gemeente zijn er diverse ambassades en advocatenkantoren gevestigd.

Bereikbaarheid:
Het object is gelegen op circa 5 minuten rijafstand van de dichtstbijzijnde rijksweg A12. In de nabijheid van deze op- en afritten is het verkeersknooppunt ‘Prins Clausplein’ gelegen, alwaar de Rijkswegen A4, A12 en A13 tezamen komen. Tevens is de bereikbaarheid met het openbaar vervoer uitstekend. Om de hoek van het object zijn haltes van de bus- en tramlijnen 1, 17, 20 en 24 gelegen, welke onder andere een directe verbinding onderhouden met Den Haag CS.

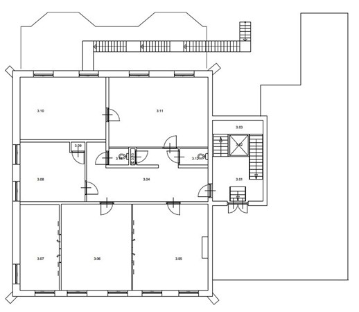
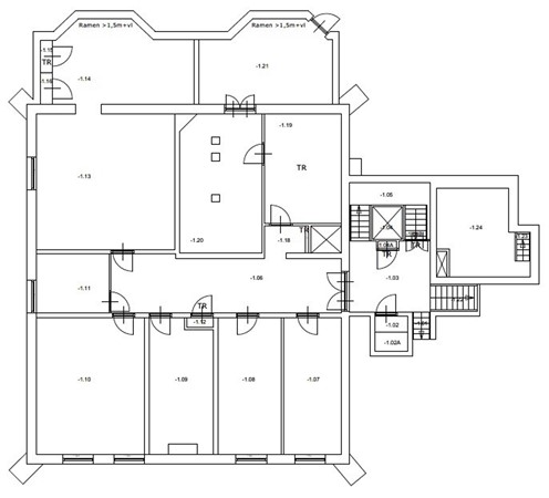
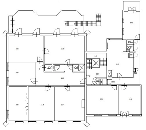
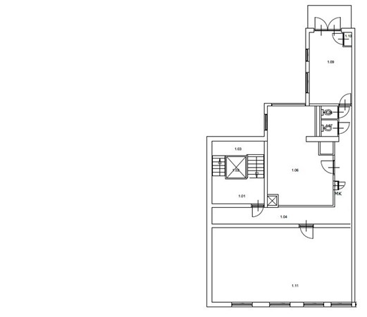
Vloeroppervlakte
De totale oppervlakte van de objecten bedraagt circa 1.348 m² v.v.o. (conform NEN 2580) als volgt verdeeld:
- begane grond: ca. 387 m² v.v.o.
- 1e verdieping: ca. 129 m² v.v.o.
- 2e verdieping: ca. 342 m² v.v.o.
- 3e verdieping: ca. 227 m² v.v.o.
- kelder: ca. 263 m² v.v.o.

Parkeren
Het achtergelegen parkeerterrein biedt plaats voor ca. 15 auto's. Tevens is er in de directe omgeving voldoende gelegenheid tot betaald parkeren.

Opleveringsniveau
Het object wordt opgeleverd met onder andere de volgende voorzieningen:
- marmeren vloertegels in de entree;
- ornamenten plafonds;
- diverse authentieke schouwen;
- ruime keuken en pantry’s;
- ruime sanitaire voorzieningen;
- databekabeling;
- kabelgoten;
- verlichtingsarmaturen;
- alarminstallatie.

Energielabel
Het object beschikt niet over een Energielabel gezien het een Rijksmonument betreft.

Bestemming
‘Willemspark’ vastgesteld d.d. 13-06-2013.
Het object valt onder bestemmingscategorie 'Gemengd'. Behoudens de uitgebreide bestemmingsmogelijkheden dient het object te worden gebruikt als kantoor.
Voor het volledige bestemmingsplan kunt u terecht op: omgevingswet.overheid.nl.

Aanvaarding
Het object is in overleg beschikbaar. Streefdatum medio 2026.

Huurprijs per m² per jaar
€ 190,- per m² per jaar te vermeerderen met BTW.

Huurprijs parkeerplaats
€ 1.800, - per plaats per jaar te vermeerderen met BTW.

BTW
Verhuurder wenst te opteren voor BTW belaste verhuur. Indien huurder niet voldoet aan de criteria, zal er een nader overeen te komen percentage ter compensatie van de gederfde BTW worden vastgesteld.

Indexering
Jaarlijks, voor het eerst één (01) jaar na ingangsdatum huurovereenkomst, op basis van de wijziging van het maandprijsindexcijfer volgens de consumentenprijsindex (CPI), reeks CPI alle huishoudens (2015=100), gepubliceerd door het Centraal Bureau voor de Statistiek (CBS). De volgens het bovenstaande geïndexeerde huurprijs zal nimmer lager zijn dan die van de voorafgaande huurjaren.

Servicekosten
Huurder dient zelf zorg te dragen voor aansluiting en betaling van alle nutsvoorzieningen.

Betalingen
Per maand vooruit.

Huurtermijn
5 (vijf) jaren.

Opzegtermijn
12 (twaalf) maanden.

Zekerheidsstelling
Bankgarantie/waarborgsom ter grootte van een bruto betalingsverplichting van minimaal 3 (drie) maanden (huur, servicekosten en BTW), afhankelijk van de financiële gegoedheid van de huurder.

Huurovereenkomst
De huurovereenkomst zal worden opgesteld conform de door de Raad voor Onroerende Zaken (ROZ) in 2015 vastgestelde ROZ model Huurovereenkomst KANTOORRUIMTE en andere bedrijfsruimte in de zin van artikel 7:230a BW met aanvullende bepalingen van verhuurder.

Courtage
Mocht door bemiddeling van SITE Real Estate B.V. een transactie tot stand komen, zult u ons hiervoor geen kosten of courtage verschuldigd zijn.

Kaart

Kenmerken

Overdracht

Referentienummer
00054
Inrichting
Niet gestoffeerd
Inrichting
Niet gemeubileerd
Aanvaarding
In overleg
Aangeboden sinds
Woensdag 18 juni 2025

Bouw

Type object
Kantoor
Soort bouw
Bestaande bouw
Bouwperiode
1847

Oppervlaktes en inhoud

VVO
1.348 m²

Indeling

Aantal bouwlagen
4

Locatie

Ligging
Aan bosrand
Aan rustige weg
Beschutte ligging
Dichtbij openbaar vervoer
In centrum
Nabij school
Nabij snelweg
Zelfstandig
Lokale voorzieningen
Bank binnen 500 meter
Geldautomaat binnen 500 meter
Recreatie binnen 500 meter
Restaurant binnen 500 meter
Winkel binnen 500 meter
Supermarkt binnen 500 meter
Bereikbaarheid
Bushalte binnen 500 meter
Treinstation op 1000 meter tot 1500 meter
Afrit van de snelweg op 1000 meter tot 1500 meter
Tramhalte binnen 500 meter

Uitrusting

Aantal parkeerplaatsen
15