Verhuurd:Kerketuinenweg 16, 2544 CW Den Haag - Foto
Verhuurd
+5

Kerketuinenweg 16 2544 CW Den Haag

  • Bedrijfshal
  • Bouwjaar 1993
  • 2.282 m² perceeloppervlakte
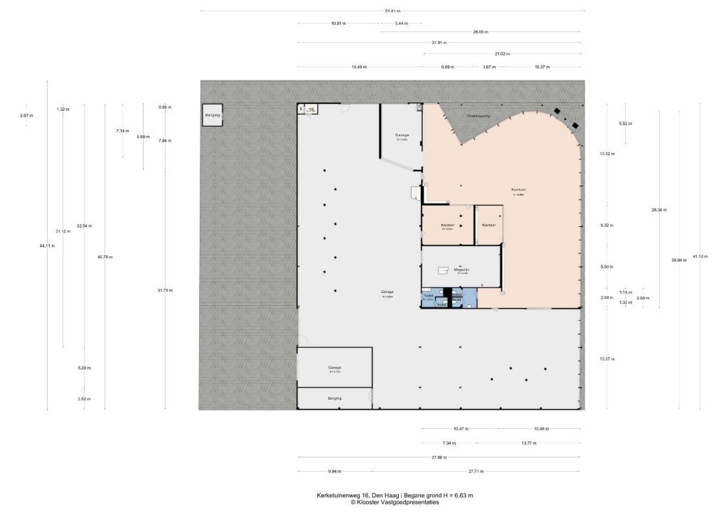
  • 1.633 m² vloeroppervlakte
  • A++ Energielabel A++
SITE Real Estate heeft Louwman BYD geadviseerd bij het gehele aanhuurproces van Kerketuinenweg 16 in Den Haag.

Beschrijving

SITE Real Estate heeft Louwman BYD geadviseerd bij het gehele aanhuurproces van Kerketuinenweg 16 in Den Haag.

Louwman BYD opent nieuwe vestiging aan de Kerketuinenweg 16 in Den Haag !

Louwman BYD heeft het geheel gerenoveerde bedrijfspand aan de Kerketuinenweg 16 in Den Haag gehuurd ten behoeve van een nieuwe showroom en werkplaats.
Het bedrijfspand heeft een vloeroppervlak van 1.662 m² op een perceel van totaal bijna 2.300 m² en heeft een A++ energielabel. Het gebouw is op een prominentie zichtlocatie gelegen en heeft de beschikking over een ruime showroom, een moderne werkplaats en voldoende buitenterrein.

Reehof Makelaars adviseerde de verhuurder, een groep particuliere beleggers.

SITE Real Estate heeft de huurder, Louwman BYD, geadviseerd bij het aanhuur proces.

Kaart

Kenmerken

Overdracht

Referentienummer
00060
Huurprijs
€ 18.000,- per maand
Inrichting
Niet gestoffeerd
Inrichting
Niet gemeubileerd
Status
Verhuurd
Aanvaarding
In overleg
Aangeboden sinds
Maandag 15 september 2025

Bouw

Type object
Bedrijfshal
Soort bouw
Bestaande bouw
Bouwperiode
1993
Keurmerken
Brandveiligheid

Oppervlaktes en inhoud

Perceeloppervlakte
2.282 m²
VVO
1.633 m²
Vrije hoogte
7 m.
Draagvermogen
1.500 kg/m²

Locatie

Ligging
Aan drukke weg
Buiten bebouwde kom
Dichtbij openbaar vervoer
Industrieterrein
Nabij snelweg
Bereikbaarheid
Bushalte binnen 500 meter
Afrit van de snelweg op 2000 meter tot 3000 meter
Tramhalte op 500 meter tot 1000 meter

Energieverbruik

Energielabel
A++

Uitrusting

Uitrusting
Betonvloer
Heater
Krachtstroom
Lichtstraten
Overheaddeuren
Pantry
Toilet

Media

Foto's

Plattegronden