Verhuurd:Johanna Westerdijkplein 1A, 2521 EN Den Haag - Foto
Verhuurd
+15

Johanna Westerdijkplein 1A 2521 EN Den Haag

  • Kantoor
  • Bouwjaar 2005
  • 625 m² vloeroppervlakte
  • A Energielabel A

Beschrijving

Algemeen
HS Building betreft een uitstekend bereikbaar en prominent gelegen kantoorgebouw van circa 21.302 m² verhuurbaar vloeroppervlak, verdeeld over 14 verdiepingen. De recent gerenoveerde entree is gesitueerd direct tegenover de entree van NS-station Hollands Spoor en beschikt op de begane grond over een moderne coffee-corner, geëxploiteerd door Stach, waar goede koffie en diverse snacks kunnen worden verkregen. Tevens kan in deze ruimte informeel vergaderd worden en fungeert de bemande coffee-corner eveneens als ontvangst/receptieruimte voor de kantoorruimtes. De voor de verhuur beschikbare kantoorruimten bevinden zich in gerenoveerde casco staat met elk een uniek uitzicht. Deze beschikbare verdiepingen zullen worden opgeleverd inclusief een legklare vloer, gesausde constructieve wanden en een gerenoveerd systeemplafond voorzien van LED-verlichting.

Adres
HS Building - Johanna Westerdijkplein 1, 2521 EN Den Haag

Locatie
HS Building is gelegen direct voor de hoofdingang van NS-station Hollands Spoor, in het Central Innovation District (CID) van Den Haag. Het CID betreft het economisch hart van de stad dat is gelegen tussen en rondom de drie intercity stations van Den Haag. Door de gebiedsontwikkeling “HS Kwartier” zal de omgeving in de nabije toekomst nog meer kwaliteitsimpulsen krijgen wat de dynamiek en de mix van voorzieningen verder zal bevorderen. Naast het toevoegen van nieuwe kantoren, woningen, winkels en horeca zal tevens de openbare ruimte opnieuw worden ingericht wat de aantrekkelijkheid van het gebied zal vergroten. Het gebied is uitstekend bereikbaar en omvat reeds een grote diversiteit aan gerenommeerde gebruikers zoals de Haagse HogeSchool, De Consumentenbond, T-Mobile, PostNL, het UWV en Amazon. Daarnaast is op loopafstand het grootschalige winkelcentrum “Megastores” gelegen.

Bereikbaarheid
Per auto:
HS Building is met het eigen vervoer uitstekend bereikbaar. Binnen enkele minuten bevindt u zich, via het Schenkviaduct, op de Utrechtsebaan naar de rijkswegen A12, A13 en A4 richting Rotterdam, Utrecht en Amsterdam. Daarnaast zijn de rijkswegen A4 enA13 ook via de Binckhorstlaan en de recent geopende Rotterdamse Baan uitstekend bereikbaar.

Per openbaar vervoer:
Door het direct tegenovergelegen intercity station Den Haag Holland Spoor is het gebouw uitstekend bereikbaar per openbaarvervoer. Hollands Spoor is een intercity station en kent een groot aantal verbindingen van lokale openbaar vervoerslijnen.

Vloeroppervlak
Het totale verhuurbare oppervlak van het gebouw bedraagt circa 21.302 m² v.v.o. kantoorruimte.
Voor de verhuur is momenteel de volgende kantoorruimte beschikbaar:

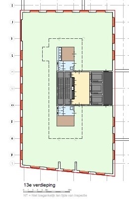
- 13e verdieping circa 652 m² Keurige staat (turn key in overleg).

Parkeren
Het is mogelijk om parkeerplaatsen op basis van de standaard parkeerabonnementen (07.00 uur tot 19.00 uur) via Verhuurder te huren in de Q-park garage ‘’Laakhaven’’, met in- en uitritten aan het Leeghwaterplein en de Rijswijkseweg. Daarnaast is het mogelijk om de parkeerabonnementen uit te breiden naar 24/7 via Q-Park.

Het abonnementstarief voor het product Kantoor offline in de Q-park garage bedraagt ( €853.12 excl. BTW) per half
jaar per abonnement.

Tevens beschikt het complex over een eigen fietsenberging in de gemeenschappelijke tuin.

Opleveringsniveau
Het kantoorgebouw wordt in de huidige (gerenoveerde) casco staat opgeleverd, onder andere voorzien van:
- Representatieve en gerenoveerde centrale entree met coffeebar, voorzien van (informele) vergaderplekken;
- Vergadervoorzieningen op de begane grond (gemeenschappelijk);
- Gemeenschappelijke binnentuin met fietsenstalling;
- 3 personenliften;
- Mechanische ventilatie voorzien van topkoeling (koelvermogen 45W/m²);
- Huidige systeemplafond voorzien van geïntrigeerde LED verlichting;
- Kabelgoten ten behoeve van databekabeling en elektra;
- Zonwerende beglazing;
- Toiletgroep per verdieping;
- Pantryaansluiting per verdieping;
- Fietsenstalling (gemeenschappelijk).

Energielabel
Het kantoorgebouw beschikt over energielabel A.

Huurprijs kantoorruimte
Begane grond EUR 180,- per m² per jaar
7e verdieping: EUR 175,- per m² per jaar
10e verdieping: EUR 175,- per m² per jaar

BTW
Verhuurder wenst te opteren voor BTW belaste verhuur. Indien niet geopteerd kan worden voor BTW belaste verhuur, zal de huurprijs met een nader te bepalen bedrag worden verhoogd.

Indexering
Jaarlijks, voor het eerst één (01) jaar na ingangsdatum huurovereenkomst, op basis van de wijziging van het maandprijsindexcijfer volgens de consumentenprijsindex (CPI), reeks CPI alle huishoudens (2015=10¬0), gepubliceerd door het Centraal Bureau voor de Statistiek (CBS). De volgens het bovenstaande geïndexeerde huurprijs zal nimmer lager zijn dan die van de voorafgaande huurjaren.

Servicekosten
€ 60,-- per m² per jaar, te vermeerderen met de wettelijk verschuldigde omzetbelasting, op voorschotbasis en nacalculatie. Servicekosten berekend op basis van 2022. Gezien de dalende tarieven voor de nutsvoorzieningen is de verwachting dat de servicekosten over 2024 flink lager zullen zijn.

In de servicekosten zijn onder andere de volgende leveringen en diensten inbegrepen:
- Gasverbruik inclusief vastrecht;
- Elektriciteitsverbruik inclusief vastrecht ten behoeve van de installaties en de verlichting van de gemeenschappelijke
ruimten;
- Elektraverbruik in het gehuurde is apart bemeterd;
- Waterverbruik inclusief vastrecht;
- Onderhoud installaties;
- Buitenterrein inclusief groenvoorziening;
- Glazenwasser buitenzijde gebouw;
- Glasverzekering ten behoeve van glas in buitengevel;
- Eventuele gemeentelijke heffingen ten behoeve van de gebruiker niet OZB;
- Schoonmaak algemene ruimten;
- Vuilafvoer;
- Overig klein onderhoud algemene ruimten;
- Eventuele gemeentelijke heffingen ten behoeve van gebruiker;
- Beheervergoeding 5%.

Betalingen
Per kalenderkwartaal vooruit te voldoen.

Huurtermijn
5 jaar, met verlengingen van telkens 5 jaar. Afwijkende termijnen in overleg.

Opzegtermijn
12 maanden voor expiratiedatum.

Zekerheidstelling
Bankgarantie ter grootte van een betalingsverplichting van drie maanden huur, inclusief servicekosten en BTW.

Huurovereenkomst
Huurovereenkomst kantoorruimte en andere bedrijfsruimte in de zin van artikel 7:230a BW conform het model door de Raad voor Onroerende Zaken (ROZ) in januari 2015 vastgesteld, alsmede de daarbij behorende algemene bepalingen en bijzondere bepalingen van verhuurder.

Aanvaarding
In overleg. Indien gewenst kan oplevering snel plaats vinden.

Kaart

Kenmerken

Overdracht

Referentienummer
00033
Huurprijs
€ 10.000,- per maand
Servicekosten
€ 60,- per maand
Inrichting
Niet gestoffeerd
Inrichting
Niet gemeubileerd
Status
Verhuurd
Aanvaarding
In overleg
Aangeboden sinds
Donderdag 3 april 2025
Laatste wijziging
Donderdag 12 maart 2026

Bouw

Type object
Kantoor
Soort bouw
Bestaande bouw
Bouwperiode
2005

Oppervlaktes en inhoud

VVO
625 m²
In units vanaf
625 m²
Inhoud
1 m³

Indeling

Aantal bouwlagen
1

Locatie

Ligging
Dichtbij openbaar vervoer
In centrum
Kantorenpark
Nabij school
Nabij snelweg
Nabij treinstation
Lokale voorzieningen
Geldautomaat binnen 500 meter
Recreatie binnen 500 meter
Restaurant binnen 500 meter
Winkel binnen 500 meter
Supermarkt binnen 500 meter
Bereikbaarheid
Bushalte binnen 500 meter
Busknooppunt binnen 500 meter
Treinstation binnen 500 meter
Afrit van de snelweg op 500 meter tot 1000 meter
Tramhalte binnen 500 meter
Tramknooppunt binnen 500 meter

Energieverbruik

Energielabel
A

Uitrusting

Aantal parkeerplaatsen
50

Media

Plattegronden