+29

Doctor Kuyperstraat 5 2514 BA Den Haag

  • Kantoor
  • Bouwjaar 1900
  • 1.033 m² vloeroppervlakte
  • Gestoffeerd
Mooie kantoorunits in monumentaal kantoorgebouw in gezellig Buurtschap 2005.

Beschrijving

Algemeen
Het betreft hier een representatieve kantoorvilla alwaar een zorgvuldig kantoorconcept is ontwikkeld om het ondernemerschap te bevorderen. Er zijn diverse hoogwaardige separate kantoorruimten in deze villa gesitueerd. Met het nieuwe werken en de aanhangende faciliteiten wordt hier een ideale omgeving gecreëerd om succesvol te zijn. De entree is gedurende kantooruren voorzien van een bemande receptie.

Adres
Dr. Kuyperstraat 5, 2514 BA te Den Haag.

Locatie
Op deze voorname locatie vestigen zich hoogwaardige zakelijke dienstverleners, ambassades en de (semi-) overheid. Het kantoorgebouw is perfect gelegen in het verlengde van de Mauritskade, direct aansluitend op de Koninginnegracht/Koningskade met de Kamer van Koophandel en het Provinciehuis enerzijds en anderzijds het centrum met de gezellige winkelstraten Denneweg, Frederikstraat, het Voorhout en Noordeinde.

Bereikbaarheid
Eigen vervoer
De bereikbaarheid met het eigen vervoer is uitstekend te noemen, middels de Zuid-Hollandlaan ontstaat een directe verbinding met het Rijkswegennet (A4 Den Haag - Amsterdam, A12 Den Haag - Utrecht, A13 Den Haag - Rotterdam).

Openbaar vervoer
De bereikbaarheid met het openbaar vervoer is uitstekend. Op loopafstand bevindt zich een tramhalte met directe aansluiting op het NS Den Haag Centraal Station.

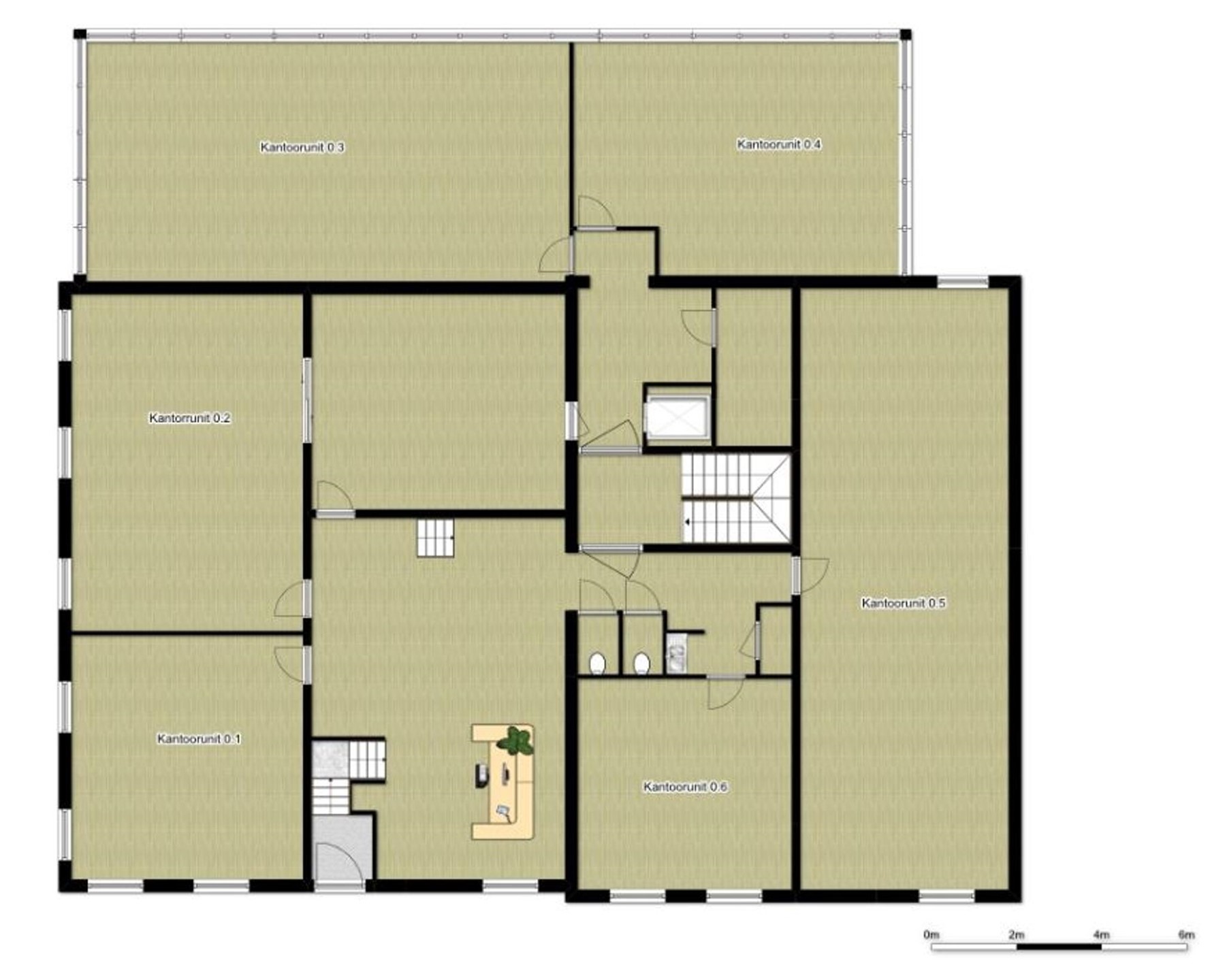
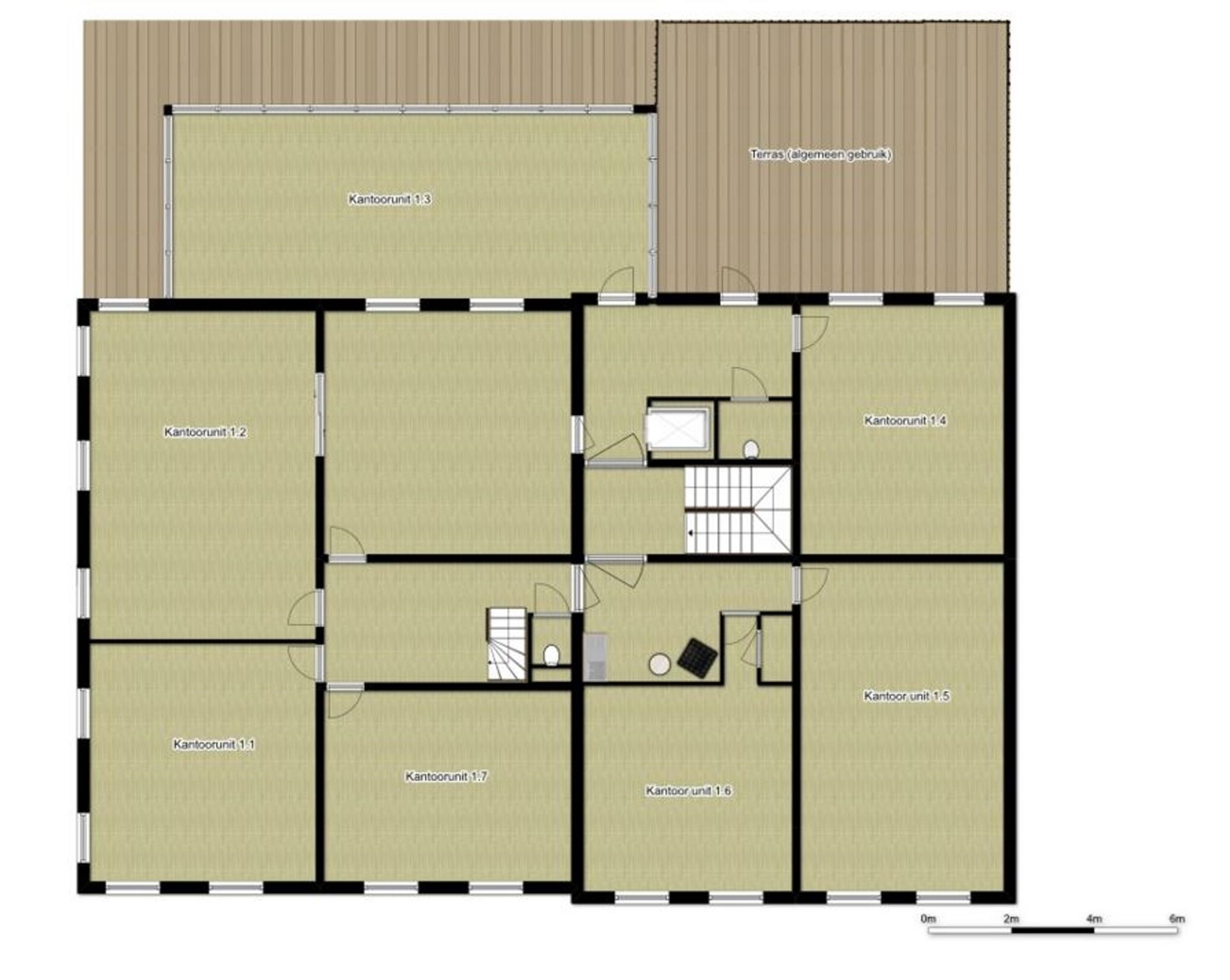
Beschikbare ruimtes

SOUTERRAIN
Unit Omschrijving m² Huurprijs* Servicekosten* Totaal per maand* Beschikbaarheid
-1.1 Achterzijde 70 € 875 € 478 € 1.353 direct

BEGANE GROND
Unit Omschrijving m² Huurprijs* Servicekosten* Totaal per maand* Beschikbaarheid
0.1 voorzijde links 30 € 750 € 205 € 955 In overleg
0.5 Rechts 68 € 1.700 € 465 € 2.165 direct

1E VERDIEPING
Unit Omschrijving m² Huurprijs* Servicekosten* Totaal per maand* Beschikbaarheid
1.3 Achterzijde 51 € 1.105 € 348,50 € 1.453,50 direct

2E VERDIEPING
Unit Omschrijving m² Huurprijs* Servicekosten* Totaal per maand* Beschikbaarheid
2.1 Voorzijde, links 27 € 630 € 184,50 € 814,50 direct
2.6 Voorzijde, rechts 36 € 840 € 246 € 1.086 direct
2.8 Voorzijde, midden 27 € 625 € 184,50 € 809,50 direct

3E VERDIEPING
Unit Omschrijving m² Huurprijs* Servicekosten* Totaal per maand* Beschikbaarheid
3.1 Voorzijde, links 21 € 475 € 144 € 619 direct

Vergaderruimte/Meeting kamer
Omschrijving Aantal personen Prijs per uur*
1 Voorzijde, links 8 € 45,-
2 Voorzijde, midden 4 € 25,-
3 Voorzijde, rechts 8 € 45,-

* te vermeerderen met BTW.

Parkeren
Op eigen achtergelegen parkeerterrein zijn parkeerplaatsen voor verhuur beschikbaar. De parkeerplaatsen worden verhuurd voor € 175,- per maand, te vermeerderen met BTW.
In geval alle parkeerplaatsen verhuurd zijn, dan kan in de directe omgeving parkeerruimte worden gehuurd.

BTW
Verhuurder wenst te opteren voor BTW belaste verhuur. Indien niet geopteerd kan worden voor BTW belaste verhuur, zal de huurprijs met een nader te bepalen bedrag worden verhoogd.

Indexering
Jaarlijks, voor het eerst één (01) jaar na ingangsdatum huurovereenkomst.

Servicekosten
De servicekosten zijn op voorschotbasis en nacalculatie. Hiervoor worden de navolgende diensten geleverd:
- elektraverbruik inclusief vastrecht (van het gehuurde,
- algemene ruimten en installaties);
- gasverbruik inclusief vastrecht;
- waterverbruik inclusief vastrecht;
- schoonmaak van de algemene ruimten;
- Wifi en Internet;
- Receptie met doorverwijsfunctie;
- beheervergoeding 5%.

Betalingen
Per kalendermaand vooruit te voldoen.

Opleveringsniveau
- Representatieve entree;
- Drie spreekkamers in het souterrain, te huur v.a. € 25,- per uur, te vermeerderen met BTW;
- Sanitaire voorzieningen per verdieping;
- Keukenfaciliteiten per verdieping;
- Wandkabelgoten, voorzien van elektra- en databekabeling;
- Te openen ramen;
- Cv-gasinstallatie met radiatoren;
- Vloerbedekking;
- Personenlift;
- Monumentaal trappenhuis.

Huurtermijn
Flexibele huurtermijnen mogelijk, met een minimale huurperiode van twee jaar.

Opzegtermijn
12 maanden.

Kaart

Kenmerken

Overdracht

Referentienummer
00048
Prijs
Prijs op aanvraag
Servicekosten
€ 82,- per maand
Inrichting
Ja
Inrichting
Gestoffeerd
Aanvaarding
In overleg
Aangeboden sinds
Donderdag 17 april 2025
Laatste wijziging
Donderdag 6 november 2025

Bouw

Type object
Kantoor
Soort bouw
Bestaande bouw
Bouwperiode
1900

Oppervlaktes en inhoud

VVO
1.033 m²
In units vanaf
21 m²
Inhoud
1 m³

Indeling

Aantal bouwlagen
5

Locatie

Ligging
Dichtbij openbaar vervoer
In centrum
In woonwijk
Nabij school
Nabij snelweg
Nabij winkelcentrum
Lokale voorzieningen
Bank binnen 500 meter
Geldautomaat binnen 500 meter
Recreatie binnen 500 meter
Restaurant binnen 500 meter
Winkel binnen 500 meter
Supermarkt binnen 500 meter
Bereikbaarheid
Bushalte binnen 500 meter
Busknooppunt binnen 500 meter
Treinstation binnen 500 meter
Afrit van de snelweg binnen 500 meter
Tramhalte binnen 500 meter
Tramknooppunt binnen 500 meter

Uitrusting

Aantal parkeerplaatsen
2