Verhuurd:Bezuidenhoutseweg 187, 2594 AH Den Haag - Foto
Verhuurd
+13

Bezuidenhoutseweg 187 2594 AH Den Haag

  • Kantoor
  • Bouwjaar 1980
  • 211 m² vloeroppervlakte
  • C Energielabel C

Beschrijving

Algemeen
De in uitstekende staat verkerende gehele 2e verdieping ter grootte van circa 211 m2 v.v.o. is beschikbaar voor de verhuur, alsmede optioneel 5 tot 7 parkeerplaatsen in de parkeerkelder. De ruimte beschikt over een ruim balkon aan de voorzijde (circa 6 x 2m. Het zelfstandig kantoorgebouw ter grootte van circa 1.457 m² is gelegen op een zeer representatieve locatie nabij de kruising Bezuidenhoutseweg/Laan van Nieuw Oost Indië.

Adres
Bezuidenhoutseweg 187-b, 2594 AH Den Haag

Locatie
Het pand is gelegen in de wijk Bezuidenhout, aan de rand van het centrum van Den Haag. Het betreft een omgeving die wordt gekenmerkt door een mix van monumentale, na-oorlogse en moderne gebouwen. Met name rond het Centraal Station en in het nieuw ontwikkelde gebied 'De Resident' is veel nieuwbouw en moderne bouw. De locatie ligt in de directe nabijheid van het Centraal Station en het winkelgebied van de stad. De Theresiastraat bevindt zich op steenworp afstand en deze biedt een grote diversiteit aan winkels en lunchgelegenheden. In de omgeving zijn ambassades, de ministeries, het Gemeentehuis en tal van gerenommeerde nationale en internationale bedrijven gevestigd.

Bereikbaarheid
Openbaar Vervoer:
De bereikbaarheid met het openbaar vervoer is goed te noemen. Op korte loopafstand bevinden zich de bushalteplaatsen voor lijn 23, 24, 28 en 43, die onder andere een directe verbinding hebben met het Centraal Station, station Mariahoeve en station Laan van NOI. Het Centraal Station is op 15 minuten loopafstand gelegen.

Eigen Vervoer:
Met eigen vervoer is het kantoorgebouw goed bereikbaar.
Op korte afstand bevinden zich de op- en afritten naar het rijkswegennet.

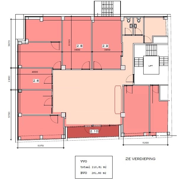
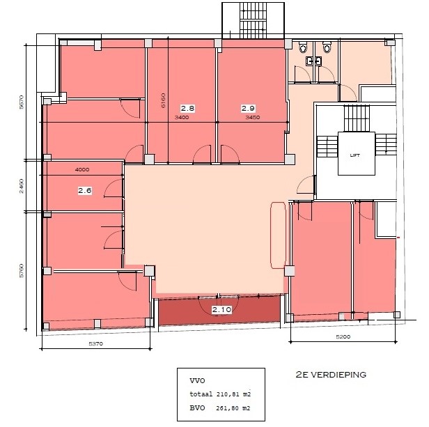
Vloeroppervlak
De totale oppervlakte voor verhuur bedraagt circa 211 m² VVO op 2e verdieping. :

Parkeren
Indien gewenst zijn er momenteel 7 parkeerplaatsen voor verhuur beschikbaar in de parkeerkelder. Aan de openbare weg zijn voldoende openbare parkeerplaatsen. Via de gemeente kan eventueel een parkeervergunning worden aangevraagd.

Opleveringsniveau
De ruimte zal worden opgeleverd met onder andere de huidige navolgende voorzieningen.
- Centrale entree;
- Personenlift;
- Entree op 2e verdieping tot geheel eigen vloer met eigen voorzieningen;
- Videofoon;
- Eigen sanitaire voorzieningen (1 damestoilet en 1 herentoilet gescheiden);
- Luxe keuken voorzien van inbouwapparatuur (o.a. magnetron, vaatwasmachine en koelkast);
- CV-gasinstallatie met radiatoren, voorzien van thermostaatkranen;
- Luchtbehandeling;
- Systeemplafonds met TL-verlichting;
- Kabelgoten ten behoeve van bekabeling;
- Te openen ramen met dubbele beglazing;
- Elektrische zonwering aan zonzijde;
- Noodverlichting / rookmelders / brandmelding / vluchtsignalering / brandslanghaspel / brandblusser;
- Balkon aan voorzijde.

Huurprijs kantoorruimte
€ 145,-- p/m² per jaar te vermeerderen met BTW..

Huurprijs parkeerplaatsen
€ 1.750,-- per plaats per jaar te vermeerderen met BTW.

Servicekosten
€ 42,50 per m² per jaar, te vermeerderen met de wettelijk verschuldigde omzetbelasting, op voorschotbasis en nacalculatie.

BTW
Verhuurder wenst te opteren voor een BTW belaste verhuur. Indien niet geopteerd kan worden voor BTW belaste verhuur, zal de huurprijs met een nader te bepalen bedrag worden verhoogd.

Indexering
Jaarlijks, voor het eerst één (01) jaar na ingangsdatum huurovereenkomst, op basis van de wijziging van het maandprijsindexcijfer volgens de consumentenprijsindex (CPI), reeks CPI alle huishoudens (2015=10¬0), gepubliceerd door het Centraal Bureau voor de Statistiek (CBS). De volgens het bovenstaande geïndexeerde huurprijs zal nimmer lager zijn dan die van de voorafgaande huurjaren.

Betalingen
Per kalenderkwartaal vooruit te voldoen.

Huurtermijn
5 jaar met aansluitende optieperiode van telkens 5 jaar. Een andere huurtermijn is eventueel bespreekbaar.

Opzegtermijn
12 maanden.

Zekerheidstelling
Bankgarantie ter grootte van een betalingsverplichting van drie maanden huur, inclusief servicekosten en BTW.

Huurovereenkomst
Huurovereenkomst kantoorruimte en andere bedrijfsruimte in de zin van artikel 7:230a BW conform het model door de Raad voor Onroerende Zaken (ROZ), alsmede de daarbij behorende algemene bepalingen en bijzondere bepalingen van verhuurder.

Aanvaarding
Beschikbaar vanaf circa 1 januari 2025. Eerdere oplevering is eventueel bespreekbaar in overleg met de vertrekkende huurder.

Kaart

Kenmerken

Overdracht

Referentienummer
00057
Huurprijs
€ 2.550,- per maand
Inrichting
Niet gestoffeerd
Inrichting
Niet gemeubileerd
Status
Verhuurd
Aanvaarding
Direct
Aangeboden sinds
Maandag 7 juli 2025

Bouw

Type object
Kantoor
Soort bouw
Bestaande bouw
Bouwperiode
1980

Oppervlaktes en inhoud

VVO
211 m²
In units vanaf
211 m²
Inhoud
1 m³

Indeling

Aantal bouwlagen
1

Locatie

Ligging
Aan bosrand
Aan drukke weg
Dichtbij openbaar vervoer
In woonwijk
Nabij school
Nabij snelweg
Lokale voorzieningen
Bank binnen 500 meter
Geldautomaat binnen 500 meter
Recreatie binnen 500 meter
Restaurant binnen 500 meter
Winkel binnen 500 meter
Supermarkt binnen 500 meter
Bereikbaarheid
Bushalte binnen 500 meter
Treinstation binnen 500 meter
Afrit van de snelweg binnen 500 meter
Tramhalte binnen 500 meter

Energieverbruik

Energielabel
C

Uitrusting

Aantal parkeerplaatsen
7
Aantal overdekte parkeerplaatsen
5

Media

Plattegronden