Onder optie:Veilingweg 54b, 2651 BE Berkel en Rodenrijs - Foto
Onder optie
+35

Veilingweg 54b 2651 BE Berkel en Rodenrijs € 297.900,- /jr € 100,-/m2/jr

  • Bedrijfshal
  • Bouwjaar 2021
  • 2.979 m² vloeroppervlakte
  • A++ Energielabel A++

Beschrijving

Algemeen
Het betreft een licht en modern bedrijfscomplex (bouwjaar 2021 / energielabel A++) met hoogwaardige showroom-/ bedrijfsruimte met kantoorruimte, gelegen op een mooie zichtlocatie aan de Oudelandselaan / hoek Veilingweg op Bedrijvenpark Rodenrijs.

Binnen het complex is een mooie 13,5 meter hoge bedrijfsruimte van bijna 2.500 m², alsmede circa 493 m² showroom-/kantoorruimte op de begane grond en 1e verdieping, beschikbaar voor verhuur.

Adres
Veilingweg 54-B,
2651 BE Berkel en Rodenrijs.

Locatie
Het moderne bedrijfsgebouw is gelegen op een mooie zichtlocatie aan de Oudelandselaan / hoek Veilingweg op Bedrijvenpark Rodenrijs te Berkel en Rodenrijs Het gebouw ligt tevens aan de rand van de woonwijk "De Gouden Griffelbuurt". In de directe omgeving zijn circa 100 ondernemingen gevestigd, waaronder Firma Koppert, Vegro, Informatique, Mc Donalds en Kringloopwinkel Rataplan. Voor meer informatie over het bedrijvenpark kijkt u op www.bedrijvenparkrodenrijs.nl.

Bereikbaarheid
Bedrijvenpark "Rodenrijs" heeft een uitstekende ligging ten opzichte van de uitvalswegen naar Rotterdam, Delft, Den Haag en Zoetermeer. Ook het vliegveld Rotterdam - The Hague airport is gelegen op ca. 10 autominuten.

Op circa 10 minuten loopafstand zijn diverse metro en busstations gelegen.

Vloeroppervlak
Begane grond: bedrijfsruimte: circa 2.486 m²
Begane grond en 1e verdieping: kantoorruimte: circa 493 m²
Totaal: circa 2.979 m²

Parkeren
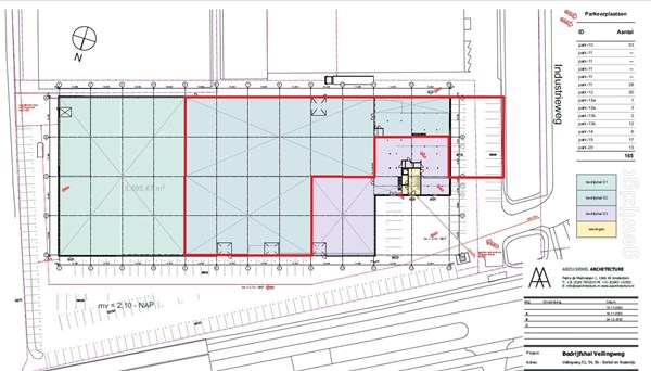
Op eigen terrein zijn 20 parkeerplaatsen beschikbaar. Tevens is er een ruim terrein aan de voorzijde van het complex gelegen ten behoeve van o.a. laden en lossen.

Energieprestatie
Het bedrijf heeft een A++ energielabel.

Opleveringsniveau
De showroom-/bedrijfsruimte zal worden opgeleverd in nagenoeg nieuwstaat en onder andere voorzien van:
- 3 x elektrisch bedienbare overheaddeur (circa 4 x 4 meter).
- Vrije hoogte bedrijfshal circa 13,5 meter !!
- glad afgewerkte vloer.
- daklichten.
- volledig voorzien van ledverlichting.
- Aluminium kozijnen en ramen v.v. HR ++ beglazing.
- Pantry voorzien van koelkast, vaatwasmachine en close-in boiler.
- Toiletruimten.
- verwarming middels elektrische heaters en diverse ventilatoren.
- Krachtstroom.
- Brandmeldcentrale.
- Brandslanghaspels en brandblussers.

In de bedrijfsruimte bevindt zich een geklimatiseerde ruimte van circa 250 m², met daarboven een entresol ten behoeve van lichte opslag. Deze kan in overleg worden overgenomen, of worden verwijderd.

De moderne showroom-/kantoorruimte zal worden opgeleverd in de huidige staat, derhalve inclusief o.a.:
- representatieve entree met dubbele elektrische schuifdeuren.
- tegelvloer op de begane grond / vloerbedekking op de verdieping.
- gedeeltelijk voorzien van kamerindeling middels luxe scheidingswanden.
- Wandkabelgoten en grondpotten t.b.v. bekabeling.
- Systeemplafonds met LED-verlichtingsarmaturen.
- 2x pantry voorzien van koelkast, vaatwasmachine en close-in boiler.
- Toiletgroepen.

Bestraat buitenterrein waarop 20 parkeerplaatsen zijn gesitueerd, alsmede aan de voorzijde van het complex voldoende rangeerruimte voor laden en lossen.

Bestemmingsplan
De voor 'Bedrijventerrein' aangewezen gronden zijn bestemd voor:
a. bedrijven/bedrijfsactiviteiten tot en met milieucategorie 3.1;
b. niet zelfstandige (bedrijfsgebonden) kantoren waarvan het kantooroppervlak ten hoogste 50% van de totale bedrijfsvloeroppervlakte mag bedragen tot een maximum van 2.000 m2 per bedrijf;
c. detailhandel in goederen indien het betreft goederen die ter plaatse worden vervaardigd of verwerkt/bewerkt op voorwaarde dat daarbij sprake is van een ondergeschikte en niet zelfstandige bedrijfsactiviteit en de bedrijfsvloeroppervlakte van deze activiteiten niet meer dan 50 m2 bedraagt.

Huurprijs
€ 100,-- per m² per jaar te vermeerderen met BTW.

BTW
Verhuurder wenst te opteren voor BTW belaste verhuur. Indien niet geopteerd kan worden voor BTW belaste verhuur, zal de huurprijs met een nader te bepalen bedrag worden verhoogd.

Indexering
Jaarlijks op 1 januari, op basis van de wijziging van het maandprijsindexcijfer volgens de consumentenprijsindex (CPI), reeks CPI alle huishoudens (2015=100), gepubliceerd door het Centraal Bureau voor de Statistiek (CBS). De volgens het bovenstaande geïndexeerde huurprijs zal nimmer lager zijn dan die van de voorafgaande huurjaren.

Servicekosten
€ 3.000,-- per jaar te vermeerderen met de verschuldigde BTW. Daarnaast dient Huurder voor eigen rekening en risico overeenkomsten te sluiten met de desbetreffende (nuts)bedrijven en zorg te dragen voor periodiek onderhoud.

Betalingen
Per kalenderkwartaal vooruit te voldoen.

Huurtermijn
Nader overeen te komen.

Opzegtermijn
12 maanden voor expiratiedatum.

Zekerheidsstelling
Bankgarantie ter grootte van een betalingsverplichting van drie maanden huur, inclusief servicekosten en BTW.

Huurovereenkomst
Huurovereenkomst kantoorruimte en andere bedrijfsruimte in de zin van artikel 7:230a BW conform het model door de Raad voor Onroerende Zaken (ROZ) in januari 2015 vastgesteld, alsmede de daarbij behorende algemene bepalingen en bijzondere bepalingen van verhuurder.

Aanvaarding
In overleg. Oplevering kan relatief snel plaatsvinden.

Kaart

Kenmerken

Overdracht

Referentienummer
00028
Huurprijs
€ 297.900,- per jaar
Servicekosten
€ 3.000,- per jaar
Inrichting
Niet gestoffeerd
Inrichting
Niet gemeubileerd
Status
Onder optie
Aanvaarding
In overleg
Aangeboden sinds
Woensdag 2 april 2025
Laatste wijziging
Donderdag 6 november 2025

Bouw

Type object
Bedrijfshal
Soort bouw
Bestaande bouw
Bouwperiode
2021
Keurmerken
Brandveiligheid

Oppervlaktes en inhoud

VVO
2.979 m²
In units vanaf
2.979 m²
Inhoud
1 m³
Vrije hoogte
13,5 m.
Draagvermogen
500 kg/m²

Locatie

Ligging
Aan drukke weg
Bedrijventerrein
Lokale voorzieningen
Recreatie binnen 500 meter
Restaurant binnen 500 meter
Bereikbaarheid
Bushalte op 1000 meter tot 1500 meter
Busknooppunt op 1000 meter tot 1500 meter
Metrohalte op 1000 meter tot 1500 meter
Metroknooppunt op 1000 meter tot 1500 meter
Afrit van de snelweg op 5000 meter of meer

Energieverbruik

Energielabel
A++

Uitrusting

Aantal parkeerplaatsen
20
Uitrusting
Betonvloer
Heater
Krachtstroom
Lichtstraten
Overheaddeuren
Pantry
Toilet